| Συνδεθείτε στην Υπηρεσία Νομοσκόπιο | | | | | Νέοι χρήστες | | Εάν είστε νέος χρήστης, θα πρέπει να δημιουργήσετε ένα ΔΩΡΕΑΝ λογαριασμό προκειμένου να φύγει το παράθυρο αυτό και να αποκτήσετε πλήρη πρόσβαση στην υπηρεσία Νομοσκόπιο. | | Δημιουργία νέου λογαριασμού | | |
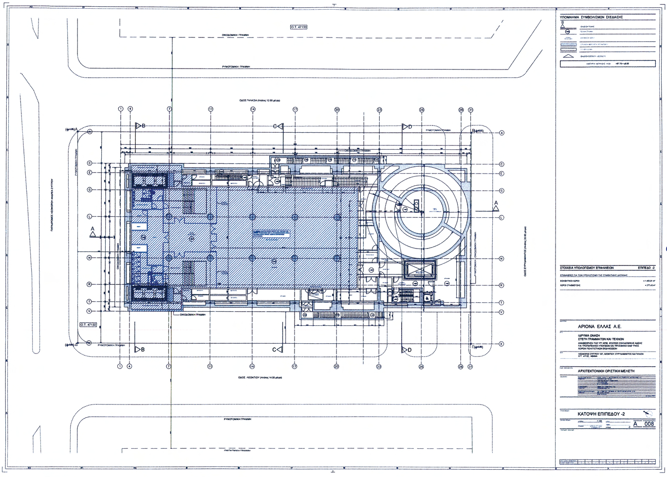
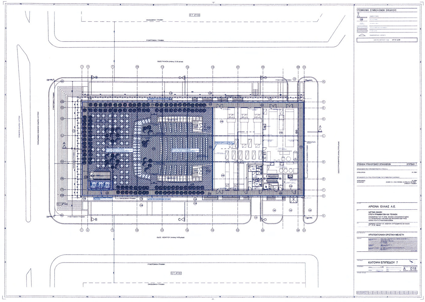
Στο κτίριο της Ωνάσειου Στέγης Γραμμάτων και Καλών Τεχνών, στο Οικοδομικό Τετράγωνο 132 περιοχή 47 του εγκεκριμένου ρυμοτομικού σχεδίου του Δήμου Αθηναίων, επιτρέπονται κατά παρέκκλιση των ισχυουσών διατάξεων τα παρακάτω:
1. Η λειτουργία πολιτιστικών εκδηλώσεων και υποστηρικτικών λειτουργιών αυτών στο πρώτο και δεύτερο υπόγειο του κτιρίου (εκθεσιακοί χώροι, αίθουσα διαλέξεων, χώρος επαγγελματικής ψηφιοποίησης οπτικοακουστικού υλικού κ.λ.π.).
2. Η επικάλυψη των μηχανολογικών δικτύων στο δώμα του κτιρίου στη στάθμη 27,60 m.
3. Η τοποθέτηση στο δώμα πέργκολας, υαλοπετασμάτων, συμπαγούς στηθαίου για τη στήριξη της πυροκουρτίνας της σκηνής και στάση συγκροτήματος ανελκυστήρων για Άτομα με Ειδικές Ανάγκες, μέγιστου ύψους 3,60 m από την κατά το προηγούμενο εδάφιο στάθμη δώματος.
4. Ο μηχανολογικός όροφος του πύργου της σκηνής του θεάτρου μπορεί να έχει ελεύθερο ύψος μεγαλύτερο των 2,20 m.
Όπως τα παραπάνω φαίνονται στα επτά (7) σχέδια κλίμακας 1:200, 1:100, που θεωρήθηκαν από τον Προϊστάμενο της Διεύθυνσης Πολεοδομίας του Υπουργείου Περιβάλλοντος, Χωροταξίας και Δημόσιων Έργων και των οποίων αντίτυπο σε φωτοσμίκρυνση δημοσιεύεται με τον παρόντα νόμο.






