| Συνδεθείτε στην Υπηρεσία Νομοσκόπιο | | | | | Νέοι χρήστες | | Εάν είστε νέος χρήστης, θα πρέπει να δημιουργήσετε ένα ΔΩΡΕΑΝ λογαριασμό προκειμένου να φύγει το παράθυρο αυτό και να αποκτήσετε πλήρη πρόσβαση στην υπηρεσία Νομοσκόπιο. | | Δημιουργία νέου λογαριασμού | | |
1. Γενικά
Ως τοίχος αντιστήριξης νοείται κάθε τεχνικό έργο που υποστηρίζει ένα επίχωμα ύψους μεγαλύτερου από 0,50 m πάνω από τη στάθμη επιχώματος ή από το φυσικό έδαφος που βρίσκεται σε άμεση επαφή με την όψη του.
2. Διάρκεια ζωής
Οι τοίχοι θα μελετηθούν για ελάχιστη διάρκεια ζωής 100 ετών.
3. Ορισμοί
Βλέπε παράγραφο 1.3 Μελέτη Τεχνικών Έργων
4. Γενικές θεωρήσεις
Οι Τοίχοι Αντιστήριξης μπορεί να έχουν διάφορες μορφές και να είναι κατασκευασμένοι με διάφορες μεθοδολογίες και υλικά κατασκευής, τρόπους θεμελίωσης κ.λ.π. Έτσι, οι τοίχοι αντιστήριξης μπορεί να είναι, ενδεικτικά αλλά όχι περιοριστικά, βαρύτητας, μορφής ανεστραμμένου Τ ή L, αντηριδωτοί, πασσαλότοιχοι, διαφραγματικοί, συνδυασμοί αυτών ή και οπλισμένες επιχώσεις για τις οποίες γίνεται αναφορά σε ιδιαίτερο κεφάλαιο της οδηγίας μελετών οδικών έργων τεχνικών έργων.
Η επιλογή του κατάλληλου τύπου κατασκευής θα γίνεται με βάση τη θεώρηση διαφόρων κριτηρίων, όπως:
4.1. Ελαχιστοποίηση της συνολικής δαπάνης κατά τη διάρκεια ζωής
4.2. Η μορφή κατασκευής που επιλέγεται θα λαμβάνει υπόψη τη γειτνίαση με άλλα έργα, ιδιοκτησίες και εγκαταστάσεις, ώστε να μπορεί να εκτελεσθεί το έργο χωρίς να τεθούν σε κίνδυνο η ασφάλεια, η ακεραιότητα και η κανονική λειτουργία αυτών.
4.3. Η θέση, μορφή και προβλεπόμενες μέθοδοι κατασκευής θα λαμβάνουν υπόψη τους περιορισμούς που επιβάλλονται από τα όρια της απαλλοτρίωσης ή/και τις άδειες που περιορίζουν η χρήση της.
4.4. Οι μέθοδοι κατασκευής που θα προβλέπονται στις μελέτες θα είναι κατάλληλες ώστε θα εξασφαλίζεται η δυνατότητα διευκόλυνσης της τοποθέτησης και της συμπύκνωσης των υλικών.
5. Ειδικές θεωρήσεις
Οι ειδικές θεωρήσεις αναφέρονται στη δυνατότητα χρήσης τυποποιημένων τεχνικών έργων αντιστήριξης.
5.1. Τα τυποποιημένα συστήματα θα αποτελούνται από υλικά που θα πληρούν τις απαιτήσεις διάρκειας ζωής σχεδιασμού του έργου. Όλα τα ενσωματωμένα υλικά θα απαιτείται να πιστοποιούνται από αναγνωρισμένο οργανισμό ότι η μακροπρόθεσμή τους αντοχή και ανθεκτικότητα είναι ικανοποιητική.
5.2. Στις περιπτώσεις στις οποίες προτείνονται τυποποιημένα τεχνικά έργα αντιστήριξης, η μελέτη τους θα πρέπει να είναι σύμφωνη με τους αντίστοιχους κανονισμούς και με τις υποδείξεις του κατασκευαστή.
6. Αισθητική και περιβαλλοντική θεώρηση
Βλέπε παράγραφο 1.4.3 της Μελέτης Τεχνικών Έργων
7. Γεωμετρικός σχεδιασμός τοίχων αντιστήριξης
7.1. Οι τοίχοι αντιστήριξης θα σχεδιάζονται σύμφωνα με τις επιταγές της παρούσας οδηγίας μελετών οδικών έργων τεχνικών έργων και των Προδιαγραφών Κατασκευής Έργου.
7.2. Η κατασκευή τοίχων υποστήριξης-αντιστήριξης με μορφή πασσαλοστοιχιών ή διαφραγματικών τοίχων συνιστάται να γίνεται όταν:
(1) Επιζητείται η αποφυγή απαλλοτρίωσης τμήματος παρόδιας ιδιοκτησίας, η οποία θα ήταν αναγκαία αν εφαρμοζόταν συνήθης μορφή τοίχου.
(2) Επιζητείται η αποφυγή καθαίρεσης κτίσματος / εγκατάστασης ή εξασφάλιση παρακείμενου κτίσματος / εγκατάστασης από τις υποχωρήσεις που θα προκληθούν εν καιρώ, στην περίπτωση κατασκευής τοίχου συνήθους μορφής.
(Η περίπτωση αυτή θα έχει εφαρμογή μόνον όπου η γραμμή ασφαλούς υποσκαφής του κτίσματος τέμνει το εκσκαπτόμενο και επανεπιχούμενο πρίσμα πίσω από τον τοίχο. Αν δεν γίνει ειδικός υπολογισμός της γραμμής ασφαλούς υποσκαφής με βάση σχετικά εδαφοτεχνικά κλπ στοιχεία θα λαμβάνεται:
a. Για γαιώδες έδαφος h:b = 1:3
b. Για πυκνό αμμοχάλικο, ημίβραχο και βράχο h:b = 1:1)
(3) Όταν κατασκευάζονται πλησίον οδικού έργου σε λειτουργία και εφόσον η επιτρεπόμενη μείωση του πλάτους του υποστηριζόμενου έργου κατά τη διάρκεια της κατασκευής, ή η δυνατότητα παραλλαγής της γεωμετρίας του δεν εξασφαλίζουν την επιθυμητή ασφάλεια για την κυκλοφορία, δηλαδή η γραμμή ασφαλούς υποσκαφής (σύμφωνα με τα παραπάνω) τέμνει την γραμμή εκσκαφής του πρίσματος που εκσκάπτεται και επανεπιχώνεται πίσω από συνήθη τοίχο, τότε, για την περίπτωση αυτή, είναι δυνατόν να επιτραπεί και κατασκευή συνήθους τοίχου κατά τμήματα (ντουλάπια).
(4) Όταν κρίνονται σκόπιμες να κατασκευασθούν, λόγω ειδικών υπαρχουσών συνθηκών ή γιατί προκύπτουν προσφορότερες από τεχνοοικονομική άποψη.
8. Υλικά και τύποι στοιχείων κατασκευής
Τηρουμένων των σχετικών απαιτήσεων όσον αφορά στους τύπους των στοιχείων κατασκευής, θα πρέπει να τηρούνται και τα ακόλουθα:
8.1. Σκυροδέματα
(1) Οι από οπλισμένο σκυρόδεμα τοίχοι αντιστήριξης θα κατασκευάζονται εξ ολοκλήρου (κορμοί, επιστέψεις, θεμέλια) από οπλισμένο σκυρόδεμα κατηγορίας Β25
(2) Οπλισμένο σκυρόδεμα κατηγορίας ανώτερης του Β25 θα χρησιμοποιείται εφόσον προκύπτουν λόγοι διαστασιολόγησης από γεωμετρικούς ή άλλους περιορισμούς.
(3) Οι πάσσαλοι, όπου χρησιμοποιούνται, καθώς και οι κεφαλόδεσμοί τους, θα κατασκευάζονται από οπλισμένο σκυρόδεμα ποιότητας Β25 ή ανώτερης. Οι μεταλλικοί πάσσαλοι αποκλείονται.
(4) Κάτω από τα θεμέλια των τοίχων θα κατασκευάζεται υποχρεωτικά εξομαλυντική στρώση από σκυρόδεμα κατηγορίας Β10 ελάχιστου πάχους 10 cm.
(5) Η σκυροδέτηση θα γίνεται απαραίτητα με τη χρήση πλευρικών ξυλότυπων, αποκλειόμενης κάθε περίπτωσης σκυροδέτησης σε επαφή με το μέτωπο εκσκαφής.
8.1. Αρμοί Διαστολής και Αρμοί Κατασκευής
Οι αρμοί διαστολής και αρμοί κατασκευής στους τοίχους αντιστήριξης θα σχεδιάζονται σύμφωνα με τις ισχύουσες προδιαγραφές και τις συμπληρωματικές απαιτήσεις των επομένων παραγράφων.
Η μελέτη θα πρέπει να επιτρέπει την τοποθέτηση των αρμών διαστολής και κατασκευής κατά τρόπο ώστε να συμπίπτουν με τα χαρακτηριστικά τελειώματος και τις σκοτίες. Οι οριζόντιοι αρμοί διαστολής θα πρέπει να αποφεύγονται.
8.2.1. Αρμοί Διαστολής
Ο σχεδιασμός των έργων αντιστήριξης θα γίνεται κατά τρόπο που να επιτρέπονται οι μετακινήσεις από τις επιδράσεις της θερμοκρασίας και της συστολής εκ πήξεως. Στα σημεία που προβλέπονται αρμοί διαστολής τόσο μεταξύ τμημάτων τοίχων αντιστήριξης όσο και μεταξύ τοίχων αντιστήριξης και ακροβάθρων ή πτερυγίων ακροβάθρων, αυτοί θα είναι ευθύγραμμοι και κατακόρυφοι και θα επεκτείνονται σε όλο το ύψος του τοίχου, συμπεριλαμβανομένου του πεδίλου. Η απόσταση μεταξύ δύο αρμών διαστολής, ή μεταξύ ενός αρμού και του άκρου του ακροβάθρου, δεν πρέπει γενικά να υπερβαίνει τα 14 m.
Σε ειδικές περιπτώσεις, στις οποίες εμφανίζεται έντονη διαφοροποίηση των συνθηκών έδρασης ή φόρτισης των παρακειμένων τμημάτων, θα εφαρμόζονται οδοντωτοί αρμοί με διαμόρφωση διατμητικού συνδέσμου (τόρμος - εντορμία).
Στους οδοντωτούς αρμούς η οδόντωση εκτείνεται μόνο στο ύψος του κορμού του τοίχου και θα διακόπτεται στην επίστεψη του τοίχου, και τουλάχιστον 0,40 m κάτω από τη στέψη του, αφήνοντας στο πάνω και κάτω άκρο της κενό 0,04 m.
Όλοι οι αρμοί τοίχων αντιστήριξης θα πρέπει να στεγανοποιούνται με στεγανωτική ταινία PVC του εμπορίου που θα στερεώνεται στο πίσω μέρος του αρμού, όπου είναι δυνατόν, και που θα έχει την ικανότητα να αναλάβει τις μετακινήσεις σχεδιασμού του αρμού. Οι στεγανωτικές ταινίες δεν θα τοποθετούνται σε ορατές όψεις ή σε όψεις πάνω στις οποίες τρέχουν νερά.
Ο οπλισμός θα διαμορφώνεται κατά τέτοιο τρόπο ώστε να εξασφαλίζεται επαρκής επικάλυψη με σκυρόδεμα μεταξύ των ενσωματωμένων στοιχείων του αρμού και των παρακείμενων ράβδων. Οι αρμοί θα σφραγίζονται με χρήση κατάλληλου ανθεκτικού σφραγίσματος χρώματος αναλόγου προς τις παρακείμενες επιφάνειες σκυροδέματος.
8.2.2. Αρμοί Κατασκευής (διακοπής εργασίας)
Οι αρμοί κατασκευής στους τοίχους αντιστήριξης θα σχεδιάζονται σύμφωνα με τις σχετικές προδιαγραφές και τις συμπληρωματικές απαιτήσεις των επόμενων υποπαραγράφων.
Οι οριζόντιοι ή/και κατακόρυφοι αρμοί κατασκευής στον κορμό των τοίχων, πρέπει να αποφεύγονται. Όταν η πρόβλεψή τους επιβάλλεται από τον όγκο του προς διάστρωση σκυροδέματος, θα παίρνεται φροντίδα να συμπίπτουν με σκοτίες στην πρόσοψη του κορμού με τη διατομή που δίνεται στις αντίστοιχες προδιαγραφές για τις κατακόρυφες σκοτίες. Όταν η διακοπή της σκυροδέτησης μπορεί να είναι μικρότερη των 15 ωρών, συνιστάται η χρήση πρόσμικτου επιβραδυντικού πήξης.
Η πάνω επιφάνεια των αρμών κατασκευής θα μορφώνεται πάντοτε αδρή.
Στις περιπτώσεις κατά τις οποίες πρόκειται να εφαρμοστούν αρμοί κατασκευής σε έργα που αντιστηρίζουν νερό ή κορεσμένη επίχωση (κάτω από τη στάθμη του υδροφόρου ορίζοντα), θα χρησιμοποιούνται συστήματα στεγάνωσης του εμπορίου ανάλογα με εκείνα που περιγράφονται στην παράγραφο 7.2 για αρμούς διαστολής.
Η μελέτη του οπλισμού θα πρέπει να επιτρέπει την κατασκευή του τοίχου σε διαστρώσεις κατάλληλου μεγέθους, κατά τρόπο ώστε να περιορίζονται οι επιδράσεις της θερμοκρασίας και της συστολής από πήξη. Σύμφωνα με τα παραπάνω, οι κύριοι κατασκευαστικοί αρμοί θα πρέπει να παρουσιάζονται στα σχέδια διάταξης του οπλισμού κατά το στάδιο της οριστικής μελέτης και θα πρέπει να δείχνονται και να προσδιορίζονται ανάλογα οι ποσότητες οπλισμού.
8.3. Θεμελιώσεις
(1) Το ελάχιστο βάθος θεμελίωσης θα είναι 0,80 m από την τελική στάθμη διαμορφώσεων μπροστά στο πέδιλο.
(2) Στην περίπτωση παρακείμενης κοίτης το βάθος θεμελίωσης θα καθορίζεται με υπολογισμούς του βάθους της πιθανής διάβρωσης της κοίτης. Το ελάχιστο βάθος θεμελίωσης θα είναι 1,0 m κάτω από την πιθανή στάθμη διάβρωσης του εδάφους και τουλάχιστον 3,0 m κάτω από την υπάρχουσα κοίτη ή 1,0 m μέσα στον βράχο (αν η θεμελίωση γίνεται σε βράχο). Αν η θεμελίωση γίνεται σε πασσάλους, οι υπολογισμοί των πασσάλων και της ανωδομής θα περιλάβουν και τις δύο καταστάσεις, πριν και μετά την πιθανή διάβρωση. Εν πάση περιπτώσει, το τελικό βάθος θεμελίωσης θα καθορισθεί με παράλληλη θεώρηση του βάθους διάβρωσης και της φέρουσας ικανότητας και ανεκτών υποχωρήσεων του εδάφους.
(3) Κατά τη διαμόρφωση της επιφάνειας θεμελίωσης θα τηρούνται επίσης οι προδιαγραφές σχετικά με την αφαίρεση του επιφανειακού στρώματος φυτικών γαιών και χαλαρών κ.λ.π.
8.4. Επιχώσεις
(1) Η επίχωση πίσω από τους τοίχους που αντιστηρίζουν σημαντικά συγκοινωνιακά έργα θα γίνεται ως ακολούθως:
(α) Επίχωση πλάτους b > 3,00 m
Για το σύνολο ή τμήμα της επίχωσης πίσω από τους τοίχους, όπου το πλάτος b (μεταξύ της πίσω όψης του τοίχου και της παρειάς της εκσκαφής ή του άλλου άκρου του επιχώματος) είναι b > 3,00 m, η επίχωση θα γίνεται προϊόντα εκσκαφών κατάλληλα για την κατασκευή επιχωμάτων και οι συνθήκες συμπύκνωσης θα αναφέρονται στην κατασκευή κανονικού επιχώματος (συνήθους ή με αυξημένο βαθμό συμπύκνωσης, σύμφωνα με τις απαιτήσεις του υπολοίπου επιχώματος).
(β) Επίχωση πλάτους b ≤ 3,00 m
Για το σύνολο ή τμήμα της επίχωσης όπου το πλάτος είναι b ≤ 3,00 m, η επίχωση θα γίνεται με μεταβατικά έργα ή μεταβατικά επιχώματα, όπως αυτά ορίζονται ακολούθως:
i. Λιθορριπές: Αυτές θα κατασκευάζονται από λίθους λατομείου μέγιστης διάστασης 0,40 m (ή μικρότερης εφόσον οι διαστάσεις του σκάμματος και οι τοπικές συνθήκες δεν επιτρέπουν τη χρήση τόσο μεγάλων λίθων). Οι λιθορριπές θα κατασκευάζονται σε στρώσεις μέγιστου πάχους 0,80 m και το συνολικό τους ύψος δεν θα μπορεί να υπερβαίνει τα 8,00 m.
Σε όση έκταση δεν είναι δυνατή η χρησιμοποίηση κατάλληλων δονητικών οδοστρωτήρων, οι λιθορριπές θα συμπυκνώνονται με κατάλληλα δονητικά μηχανήματα συμπύκνωσης (δονητικοί συμπιεστές, δονητικές πλάκες, δονητικοί κύλινδροι) βαρέως τύπου, σύμφωνα με τις ισχύουσες Τεχνικές Προδιαγραφές
ii. Κατεργασμένο Θραυστό Αμμοχάλικο (ΚΘΑ) με τσιμέντο, σύμφωνα με τις ισχύουσες Τεχνικές Προδιαγραφές.
iii. Σταθεροποιημένο Εδαφικό Υλικό (ΣΕΥ) με τσιμέντο, σύμφωνα με τις ισχύουσες Τεχνικές Προδιαγραφές.
iv. Σκυρόδεμα κατηγορίας Β5.
(2) Η επίχωση πίσω από τους τοίχους (όπως παραπάνω) που αντιστηρίζουν λοιπά έργα πλην σημαντικών συγκοινωνιακών έργων, μπορεί να γίνεται εξ ολοκλήρου με προϊόντα εκσκαφών κατάλληλα για την κατασκευή επιχωμάτων. Οι συνθήκες συμπύκνωσης στα τμήματα όπου το πλάτος b θα είναι b > 3,00 m θα αντιστοιχούν σε συμπύκνωση κανονικού επιχώματος με οποιοδήποτε βαθμό συμπύκνωσης προδιαγράφεται για το υπόλοιπο κανονικό επίχωμα. Οι συνθήκες συμπύκνωσης για τμήματα όπου είναι b ≤ 3,00 m, θα αντιστοιχούν στη συμπύκνωση που προβλέπεται για επίχωση περιοχής πάνω από τη ζώνη αγωγού, σύμφωνα με το αντίστοιχο άρθρο της Τεχνικής Συγγραφής Υποχρεώσεων.
(3) Ως σημαντικά συγκοινωνιακά έργα για τις ανάγκες της παραγράφου θεωρούνται:
| • | Κλάδοι κόμβων (υπεραστικού ή αστικού τύπου) |
| • | Υπεραστικές οδοί κατηγορίας AV ή Γ4 και ανώτερης |
| • | Αστικές οδοί λειτουργικής κατάταξης συλλεκτήριας οδού και ανώτερης |
(4) Τεχνικά έργα αντιστήριξης που επιχώνονται θα πρέπει να περιλαμβάνουν συστήματα αποστράγγισης που συντηρούνται εύκολα, ώστε να αποφεύγεται η ανάπτυξη σημαντικών υδροστατικών πιέσεων στην αντιστηριζόμενη επίχωση.

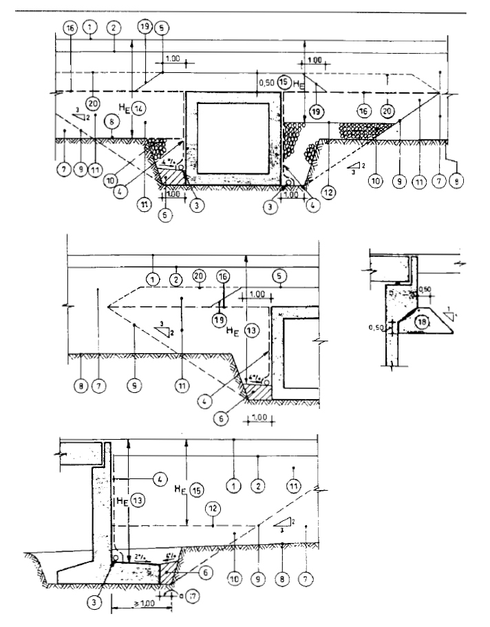
Σχήμα 8.1: Τυπική λεπτομέρεια διατομής τοίχου αντιστήριξης
Υπόμνημα σχήματος
1. Επιφάνεια κύλισης οδού ή ανώτατη στάθμη υποστρώματος Σιδηροδρομικής Γραμμής στον άξονα αυτής.
2. Ανώτατη στάθμη χωματουργικών (Ταυτίζεται με την Κάτω στάθμη Στρώσης Έδρασης Οδοστρώματος (ΣΕΟ))
3. Στραγγιστήριο όταν απαιτείται. (Ενδεικτική υψομετρική τοποθέτηση ανάλογα με τις τοπικές συνθήκες)
4. Στρώση στράγγισης. (Εφαρμόζεται στην περίπτωση που τα μεταβατικά έργα / μεταβατικό επίχωμα δεν εξασφαλίζουν την ευχερή στράγγιση)
5. Άνω στάθμη επίχωσης με μεταβατικό επίχωμα για οχετούς υπό επίχωση. (Ισχύει και για θολωτούς οχετούς υπό επίχωση)
6. Επίχωση με αργιλικό υλικό καλά συμπυκνωμένο, ή σκυρόδεμα Β5
7. Κανονικό επίχωμα
8. Στάθμη έδρασης κανονικού επιχώματος (μετά την αφαίρεση τυχόν ακαταλλήλων εδαφών)
9. Γραμμή ορίου μεταξύ μεταβατικών έργων και μεταβατικού επιχώματος αφ' ενός και κανονικού επιχώματος αφ' ετέρου. (Για την περίπτωση οδικών έργων, η κλίση h:b = 2:3 μπορεί να μετατραπεί σε h:b = 1:1 ύστερα από έγκριση της Υπηρεσίας, εφόσον η κατασκευή των μεταβατικών έργων / μεταβατικού επιχώματος γίνεται ταυτοχρόνως με την κατασκευή του κανονικού επιχώματος)
10. Μεταβατικά έργα από λιθορριπές, ή σκυρόδεμα Β5. (Θα εφαρμόζονται έπειτα από οικονομοτεχνική διερεύνηση)
11. Μεταβατικό επίχωμα. (Μπορεί να αντικατασταθεί μερικά ή ολικά από μεταβατικά έργα, ύστερα από οικονομοτεχνική διερεύνηση)
12. Άνω στάθμη μεταβατικών έργων (θα εκλέγεται ύστερα από οικονομοτεχνική διερεύνηση)
13. Ύψος ΗΕ για την περίπτωση που δεν προβλέπεται η κατασκευή μεταβατικών έργων
14. Ύψος ΗΕ για την περίπτωση που προβλέπεται η κατασκευή μεταβατικών έργων μέχρι τη στάθμη έδρασης του κανονικού επιχώματος
15. Ύψος ΗΕ για την περίπτωση που προβλέπεται η κατασκευή μεταβατικών έργων πάνω από τη στάθμη έδρασης του κανονικού επιχώματος
16. Ανώτατη στάθμη μεταβατικών έργων.
17. Γενικώς α=0,50 m. Για θεμέλια που σκυροδετούνται μέχρι το πρανές εκσκαφής (κόντρα στο πρανές), χωρίς παρεμβολή ξυλότυπου, το πλάτος α περιορίζεται σε 0,25 m.
18. Γενική περίπτωση πέρατος μεταβατικού επιχώματος με εξαίρεση των επόμενη περίπτωση (παράγραφος α/α 20 υπομνήματος)
19. Σε περίπτωση που μεταβατικό έργο από λιθορριπές κατασκευάζεται μέχρι την άνω στάθμη του οχετού και το κανονικό επίχωμα έχει κοκκομετρική σύνθεση που να απαιτεί να γίνει σφράγιση της λιθορριπής, τότε το μεταβατικό επίχωμα της παραγράφου 19 του υπομνήματος επεκτείνεται ως στρώση σφράγισης όπως δείχνεται στο σχέδιο.
8.5. Διάφορα Προϊόντα Βιομηχανικής Κατασκευής (proprietary)
Όλα τα υλικά και προϊόντα βιομηχανικής κατασκευής που πρόκειται να χρησιμοποιηθούν στα μόνιμα έργα πρέπει να συνοδεύονται από πιστοποιητικό ποιότητας από έναν από τους αναγνωρισμένους φορείς που αναφέρονται στις ισχύουσες Τεχνικές Προδιαγραφές ή / και στους λοιπούς Ειδικούς Όρους Μελέτης ή / και Κατασκευής.
9. Μέθοδοι κατασκευής
Ισχύουν κατ' αντιστοιχία όσα αναφέρονται στο κεφάλαιο 7.7.
10. Κανονισμοί
Ολόκληρος ο σχεδιασμός θα γίνει σύμφωνα με τους ισχύοντες στην χώρα μας κανονισμούς και λοιπές κανονιστικές διατάξεις, προεδρικά διατάγματα, Υπουργικές Αποφάσεις, Εγκυκλίους κ.α. σε συνδυασμό με τη διάταξη της παρούσας οδηγίας μελετών οδικών έργων.
11. Φορτία υπολογισμού
Ισχύουν τα αναφερόμενα στην παράγραφο 2 του της παρούσας οδηγίας μελετών οδικών έργων.
12. Δομικές διαμορφώσεις
Οι παρακάτω αναφερόμενες ελάχιστες διαστάσεις δομικής διαμόρφωσης ισχύουν για τοίχους που κατασκευάζονται επί τόπου, δεν έχουν όμως εφαρμογή για προκατασκευασμένα στοιχεία, όπου ισχύουν τα DIN και οι λοιποί σχετικοί κανονισμοί.
| • | Συμβατικοί τοίχοι ελάχιστο πάχος κορμού d = 30 cm |
| • | Εξομαλυντική στρώση (καθαριότητας) από σκυρόδεμα d = 10 cm |
Η πλάκα του κεφαλόδεσμου πασσάλων θα προεξέχει τουλάχιστον 30 cm από τους πασσάλους. Η καθαρή απόσταση μεταξύ πασσάλων στο κάτω πέλμα του κεφαλόδεσμου θα είναι τουλάχιστον 60 cm. Ο κεφαλόδεσμος θα έχει ελάχιστο πάχος 60 cm, αλλά όχι μικρότερο από τη μεγαλύτερη διάμετρο πασσάλου.
13. Απαιτήσεις χαλαρού οπλισμού σκυροδέματος
13.1. Ελάχιστη διάμετρος και μέγιστη απόσταση ράβδων
Η ελάχιστη διάμετρος χαλαρών οπλισμών σκυροδέματος είναι 10 mm και η μέγιστη απόσταση ράβδων 20 cm. Τούτο δεν ισχύει για τον οπλισμό μονταρίσματος, όπως τα άγκιστρα S κ.λ.π.
Για πλέγματα οπλισμού, το άνοιγμα βροχίδας θα είναι ≤ 150 mm και η διάμετρος των ράβδων ≥ 6 mm.
13.2. Ελάχιστος οπλισμός
Όλες οι παρειές των στοιχείων της κατασκευής θα οπλίζονται με οπλισμό και στις δύο κατευθύνσεις. Κάθε παρειά θα οπλίζεται ανά κατεύθυνση με ελάχιστον οπλισμό 0,06% της επιφάνειας σκυροδέματος, αλλά τουλάχιστον Φ 10 mm ανά 20 cm, ή με πλέγμα της ίδιας επιφάνειας χάλυβα.
Ο ελάχιστος οπλισμός θα τίθεται σε όλους τους αρμούς διακοπής εργασίας, εκτός αν απαιτείται περισσότερος για στατικούς λόγους.
13.3. Επικάλυψη οπλισμών
Γενικά, η ελάχιστη επικάλυψη οπλισμών θα είναι 4 cm και η ονομαστική επικάλυψη 4,5 cm. Σε περίπτωση επαφής του σκυροδέματος με το έδαφος η ελάχιστη επικάλυψη θα είναι 5 cm και η ονομαστική 5,5 cm.
14. Απαιτήσεις παραμορφώσεων
Οι παραμορφώσεις των τεχνικών έργων αντιστήριξης από τις επιδράσεις των λειτουργικών φορτίων σχεδιασμού συνιστάται να είναι περιορισμένες, τόσο ώστε:
Η μακροπρόθεσμη εγκάρσια παραμόρφωση στη στέψη ενός τοίχου παρατιθέμενων πασσάλων ή τοίχου τεμνόμενων πασσάλων ή διαφραγματικού τοίχου ή άλλου τύπου έγχυτου τεχνικού έργου αντιστήριξης συνιστάται να περιορίζεται στο 1,0% του αντιστηριζόμενου ύψους, όπου ως αντιστηριζόμενο ύψος ορίζεται η διαφορά της στάθμης των εκατέρωθεν και αμέσως προσκείμενων προς τον τοίχο διαμορφώσεων. Σε περίπτωση που ισχύουν και άλλα όρια μικρότερων παραμορφώσεων, τότε οι μελέτες θα βασίζονται σ' αυτά τα πιο συντηρητικά όρια.