| Συνδεθείτε στην Υπηρεσία Νομοσκόπιο | | | | | Νέοι χρήστες | | Εάν είστε νέος χρήστης, θα πρέπει να δημιουργήσετε ένα ΔΩΡΕΑΝ λογαριασμό προκειμένου να φύγει το παράθυρο αυτό και να αποκτήσετε πλήρη πρόσβαση στην υπηρεσία Νομοσκόπιο. | | Δημιουργία νέου λογαριασμού | | |
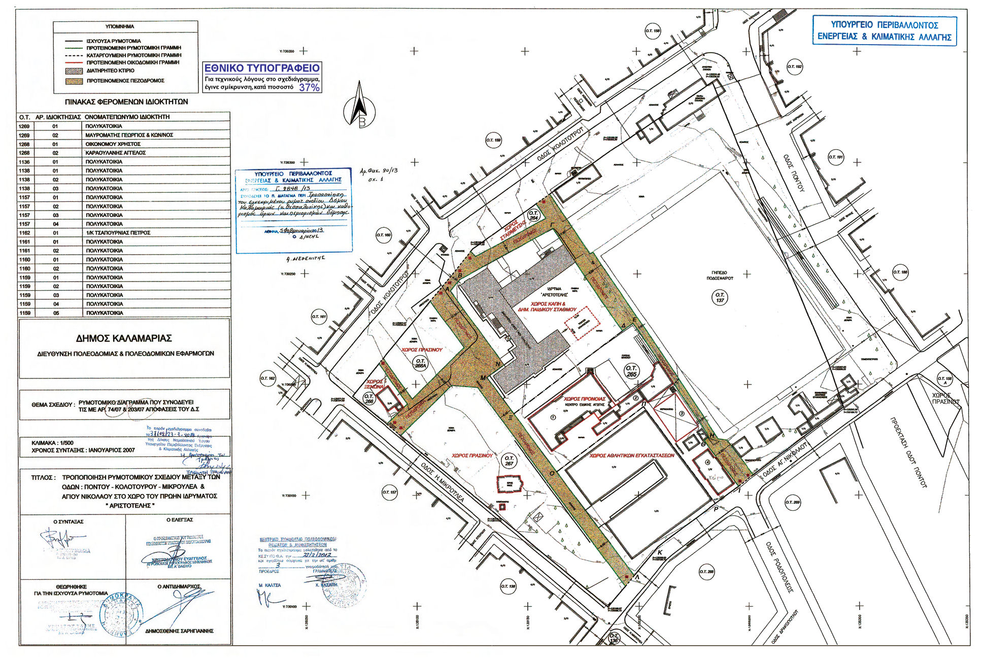
1. Εγκρίνεται η τροποποίηση του εγκεκριμένου ρυμοτομικού σχεδίου του Δήμου Καλαμαριάς (Νομού Θεσσαλονίκης), στο χώρο του πρώην Ιδρύματος Αριστοτέλης και ειδικότερα στο χώρο που περικλείεται από τις οδούς Πόντου, Αγίου Νικολάου, Η. Μικρουλέα και Κολοτούρου με την έγκριση εντός αυτού πεζοδρόμων και τον καθορισμό χώρων πρασίνου, χώρου Κέντρου Αγάπης και Αλληλεγγύης και Δημοτικού Παιδικού Σταθμού, Πρόνοιας (Κέντρο Ειδικής Αγωγής), Αθλητικών Εγκαταστάσεων, Ξενώνα και χώρου στάθμευσης, όπως φαίνεται στο σχετικό πρωτότυπο διάγραμμα σε κλίμακα 1:1000 που θεωρήθηκε από τον Προϊστάμενο της Διεύθυνσης Τοπογραφικών Εφαρμογών με την υπ' αριθμ;on 2848/2013 πράξη του και που αντίτυπό του σε φωτοσμίκρυνση δημοσιεύεται με το παρόν διάταγμα.
2. Στους παραπάνω χώρους Πρόνοιας και Ξενώνα καθορίζεται περίγραμμα κάλυψης, στο χώρο πρασίνου (267) καθορίζεται η θέση και διάταξη του υφισταμένου Ιερού ναού και του κωδωνοστασίου και στο χώρο Κέντρου Αγάπης και Αλληλεγγύης και Δημοτικού Παιδικού Σταθμού καθορίζεται περίγραμμα υπογείου λεβητοστασίου, όπως φαίνονται στο διάγραμμα της προηγουμένης παραγράφου.
