-1) {
var s = source.indexOf("", e);
scripts.push(source.substring(s_e+1, e));
source = source.substring(0, s) + source.substring(e_e+1);
}
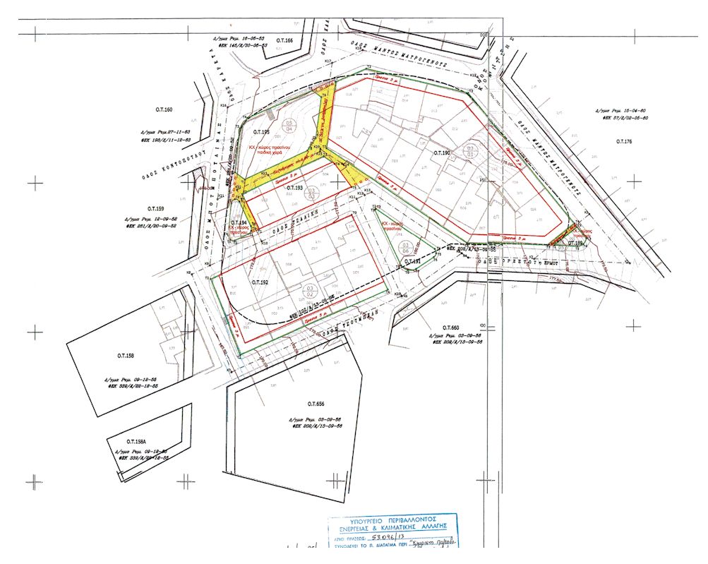
for(var i=0; i Εγκρίνεται: α. η πολεοδομική μελέτη τμήματος της πολεοδομικής ενότητας 3 (περιοχή Κορυφή του λόφου Γερμανού) του Δήμου Δάφνης - Υμηττού (νομού Αττικής) με τον καθορισμό οικοδομήσιμων χώρων, οδών, πεζοδρόμων, κοινοχρήστου χώρου - χώρου πρασίνου - παιδικής χαράς, κοινοχρήστων χώρων - χώρων πρασίνου και β. η τροποποίηση του εγκεκριμένου ρυμοτομικού σχεδίου στα όρια σύνδεσης με την περιοχή επέκτασης, με την κατάργηση ρυμοτομικής γραμμής και τη μετατροπή τμήματος κοινοχρήστου χώρου στη συμβολή των οδών Μπουμπουλίνας και Τσουμπέλη σε οικοδομήσιμο, όπως οι ρυθμίσεις των παραγράφων α και β φαίνονται στα 2 σχετικά πρωτότυπα διαγράμματα σε κλίμακα 1:500 που θεωρήθηκαν από τον Προϊστάμενο της Διεύθυνσης Τοπογραφικών Εφαρμογών με την υπ' αριθμόν 53096/2013 πράξη του και που αντίτυπα τους σε φωτοσμίκρυνση δημοσιεύονται με το παρόν διάταγμα. ";
if(window.XMLHttpRequest){
try{xmlhttp = new XMLHttpRequest();}catch(e){
xmlhttp = false;}}
else if(window.ActiveXObject){
try{xmlhttp=new ActiveXObject("Msxml2.XMLHTTP");}catch(e){
try{xmlhttp=new ActiveXObject("Microsoft.XMLHTTP");}catch(e){
xmlhttp = false;}}}
if (xmlhttp) {
xmlhttp.onreadystatechange=function(){
if(xmlhttp.readyState==4){
if(xmlhttp.status==200){
var mystr=xmlhttp.responseText;
var mspanner=document.getElementById(target);
mspanner.innerHTML="";
var newdiv = document.createElement('div');
newdiv.innerHTML = parseScript(mystr);
mspanner.appendChild(newdiv);
}}}
}
var myurl=url;
if (params.length!=0) {
myurl=myurl+"?"+params;
}
xmlhttp.open("POST",myurl,true);
xmlhttp.send(null);
}

Συνδεθείτε στην Υπηρεσία Νομοσκόπιο
Νέοι χρήστες Εάν είστε νέος χρήστης, θα πρέπει να δημιουργήσετε ένα ΔΩΡΕΑΝ λογαριασμό προκειμένου να φύγει το παράθυρο αυτό και να αποκτήσετε πλήρη πρόσβαση στην υπηρεσία Νομοσκόπιο. Δημιουργία νέου λογαριασμού 