| Συνδεθείτε στην Υπηρεσία Νομοσκόπιο | | | | | Νέοι χρήστες | | Εάν είστε νέος χρήστης, θα πρέπει να δημιουργήσετε ένα ΔΩΡΕΑΝ λογαριασμό προκειμένου να φύγει το παράθυρο αυτό και να αποκτήσετε πλήρη πρόσβαση στην υπηρεσία Νομοσκόπιο. | | Δημιουργία νέου λογαριασμού | | |
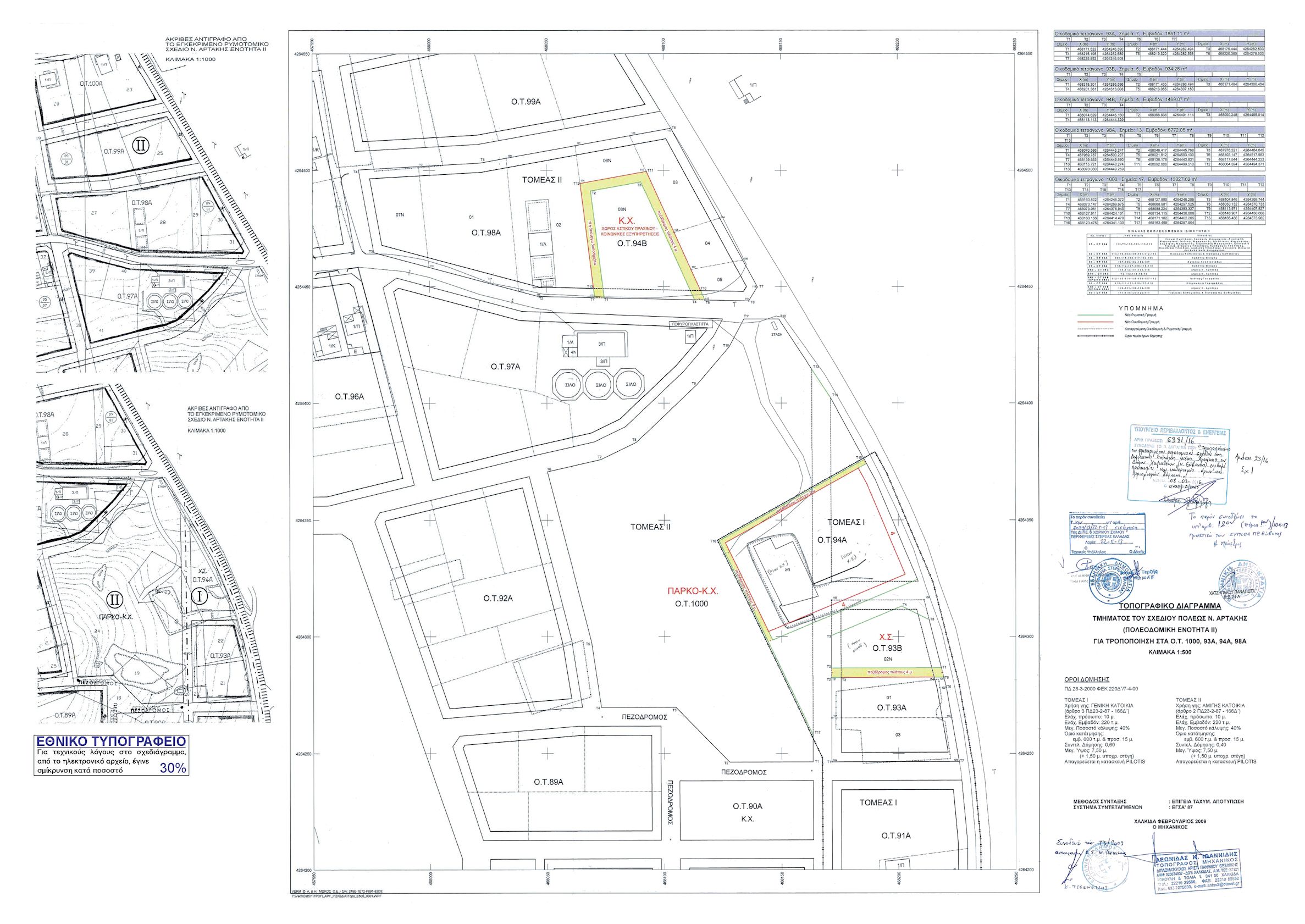
Εγκρίνεται η τροποποίηση στα οικοδομικά τετράγωνα 1000, 94Α, 93Α, 98Α του εγκεκριμένου ρυμοτομικού σχεδίου της Δημοτικής Ενότητας Νέας Αρτάκης του Δήμου Χαλκιδέων (νομού Εύβοιας) και ειδικότερα με:
1. Τη μετατροπή τμήματος του οικοδομικού τετραγώνου 1000 (πάρκο - κοινόχρηστος χώρος), του χώρου στάθμευσης και τμημάτων οδών σε οικοδομήσιμο (οικοδομικό τετράγωνο 94Α), μετατόπιση ρυμοτομικών και οικοδομικών γραμμών, έγκριση οδού και πεζοδρόμων, δημιουργία νέου οικοδομικού τετραγώνου (οικοδομικό τετράγωνο 93Α) και καθορισμό χώρου στάθμευσης αυτοκινήτων (οικοδομικό τετράγωνο 93Β).
2. Τον καθορισμό τμήματος του οικοδομικού τετραγώνου 98Α σε κοινόχρηστο χώρο - χώρο αστικού πρασίνου - κοινωνικών εξυπηρετήσεων (οικοδομικό τετράγωνο 94Β) και έγκριση πεζοδρόμου εντός του ιδίου ως άνω οικοδομικού τετραγώνου 98Α όπως οι ρυθμίσεις των παραγράφων 1 και 2 φαίνονται στο σχετικό πρωτότυπο διάγραμμα σε κλίμακα 1:500, που θεωρήθηκε από τον Προϊστάμενο της Διεύθυνσης Τοπογραφικών Εφαρμογών και Γεωχωρικών Πληροφοριών με την υπ' αριθμόν 6381/2016 πράξη του και που αντίτυπό του σε φωτοσμίκρυνση δημοσιεύεται με το παρόν διάταγμα.
