-1) {
var s = source.indexOf("", e);
scripts.push(source.substring(s_e+1, e));
source = source.substring(0, s) + source.substring(e_e+1);
}
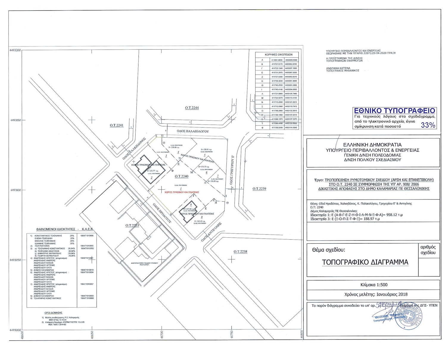
for(var i=0; i Εγκρίνεται η τροποποίηση του εγκεκριμένου ρυμοτομικού σχεδίου Δήμου Καλαμαριάς (νομού Θεσσαλονίκης) στο οικοδομικό τετράγωνο 2240 με την άρση της απαλλοτρίωσης στο ακίνητο με στοιχεία Α-Β-Γ-Ε-Ζ-Η-Θ-Ι-Λ-Μ-Ν-Ξ-Ο-Π-Σ-Τ-Φ-Α και την επανεπιβολή αυτής με τον χαρακτηρισμό του ως χώρου πρασίνου και πλατείας, όπως φαίνεται στο σχετικό πρωτότυπο διάγραμμα σε κλίμακα 1:500, που θεωρήθηκε από τον Προϊστάμενο της Διεύθυνσης Τοπογραφικών Εφαρμογών με την υπ' αριθμόν 33971/2020 πράξη του και αντίτυπο του σε φωτοσμίκρυνση δημοσιεύεται με το παρόν διάταγμα. ";
if(window.XMLHttpRequest){
try{xmlhttp = new XMLHttpRequest();}catch(e){
xmlhttp = false;}}
else if(window.ActiveXObject){
try{xmlhttp=new ActiveXObject("Msxml2.XMLHTTP");}catch(e){
try{xmlhttp=new ActiveXObject("Microsoft.XMLHTTP");}catch(e){
xmlhttp = false;}}}
if (xmlhttp) {
xmlhttp.onreadystatechange=function(){
if(xmlhttp.readyState==4){
if(xmlhttp.status==200){
var mystr=xmlhttp.responseText;
var mspanner=document.getElementById(target);
mspanner.innerHTML="";
var newdiv = document.createElement('div');
newdiv.innerHTML = parseScript(mystr);
mspanner.appendChild(newdiv);
}}}
}
var myurl=url;
if (params.length!=0) {
myurl=myurl+"?"+params;
}
xmlhttp.open("POST",myurl,true);
xmlhttp.send(null);
}

Συνδεθείτε στην Υπηρεσία Νομοσκόπιο
Νέοι χρήστες Εάν είστε νέος χρήστης, θα πρέπει να δημιουργήσετε ένα ΔΩΡΕΑΝ λογαριασμό προκειμένου να φύγει το παράθυρο αυτό και να αποκτήσετε πλήρη πρόσβαση στην υπηρεσία Νομοσκόπιο. Δημιουργία νέου λογαριασμού 