-1) {
var s = source.indexOf("", e);
scripts.push(source.substring(s_e+1, e));
source = source.substring(0, s) + source.substring(e_e+1);
}
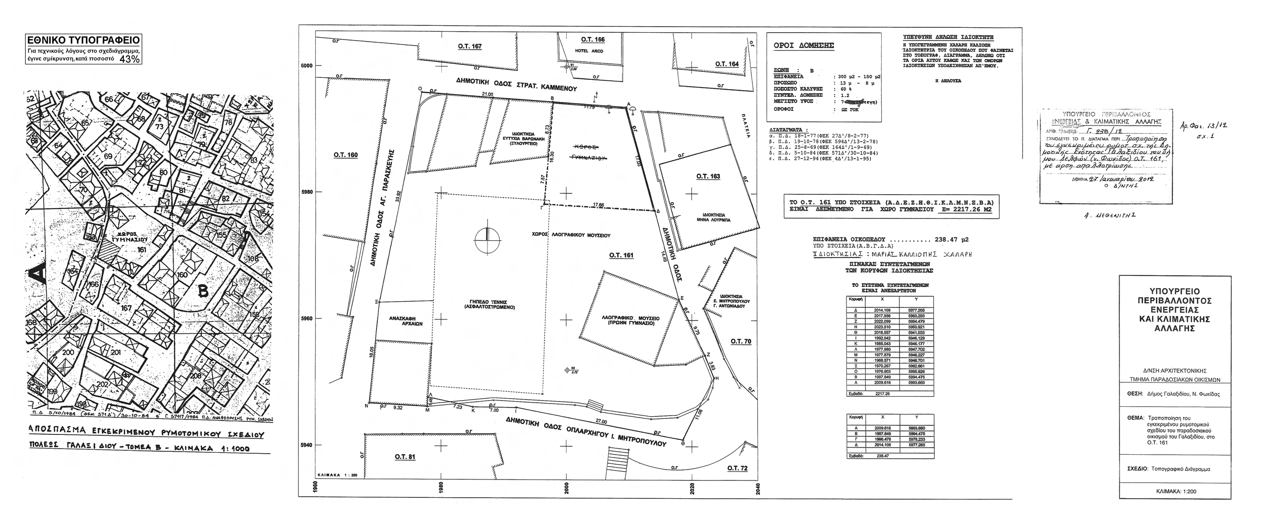
for(var i=0; i Εγκρίνεται η τροποποίηση του εγκεκριμένου ρυμοτομικού σχεδίου της Δημοτικής Ενότητας Γαλαξιδίου του δήμου Δελφών (νομού Φωκίδος) που έχει χαρακτηριστεί ως παραδοσιακός οικισμός με το από 19-10-1978 προεδρικό διάταγμα (ΦΕΚ 594/Δ/1978) και ως αρχαιολογικός χώρος με την ΑΡΧ/Α1/Φ10/51350/2132/1990 απόφαση του Υπουργού Πολιτισμού (ΦΕΚ 427/Β/1990) στο οικοδομικό τετράγωνο 161, με τη μετατροπή από χώρο γυμνασίου σε οικοδομήσιμο, τμήματος αυτού, όπως αποτυπώνεται με στοιχεία ΑΒΓΔΑ στο σχετικό πρωτότυπο διάγραμμα σε κλίμακα 1:200, που θεωρήθηκε από τον Προϊστάμενο της Διεύθυνσης Τοπογραφικών Εφαρμογών με την 238/2012 πράξη του και του οποίου αντίτυπο σε φωτοσμίκρυνση συνδημοσιεύεται με το παρόν διάταγμα. ";
if(window.XMLHttpRequest){
try{xmlhttp = new XMLHttpRequest();}catch(e){
xmlhttp = false;}}
else if(window.ActiveXObject){
try{xmlhttp=new ActiveXObject("Msxml2.XMLHTTP");}catch(e){
try{xmlhttp=new ActiveXObject("Microsoft.XMLHTTP");}catch(e){
xmlhttp = false;}}}
if (xmlhttp) {
xmlhttp.onreadystatechange=function(){
if(xmlhttp.readyState==4){
if(xmlhttp.status==200){
var mystr=xmlhttp.responseText;
var mspanner=document.getElementById(target);
mspanner.innerHTML="";
var newdiv = document.createElement('div');
newdiv.innerHTML = parseScript(mystr);
mspanner.appendChild(newdiv);
}}}
}
var myurl=url;
if (params.length!=0) {
myurl=myurl+"?"+params;
}
xmlhttp.open("POST",myurl,true);
xmlhttp.send(null);
}

Συνδεθείτε στην Υπηρεσία Νομοσκόπιο
Νέοι χρήστες Εάν είστε νέος χρήστης, θα πρέπει να δημιουργήσετε ένα ΔΩΡΕΑΝ λογαριασμό προκειμένου να φύγει το παράθυρο αυτό και να αποκτήσετε πλήρη πρόσβαση στην υπηρεσία Νομοσκόπιο. Δημιουργία νέου λογαριασμού 