| Συνδεθείτε στην Υπηρεσία Νομοσκόπιο | | | | | Νέοι χρήστες | | Εάν είστε νέος χρήστης, θα πρέπει να δημιουργήσετε ένα ΔΩΡΕΑΝ λογαριασμό προκειμένου να φύγει το παράθυρο αυτό και να αποκτήσετε πλήρη πρόσβαση στην υπηρεσία Νομοσκόπιο. | | Δημιουργία νέου λογαριασμού | | |
Απόφαση 24926/2017: Καθορισμός συμπληρωματικών ειδικών όρων και περιορισμών δόμησης στο διατηρητέο κτίριο επί της οδού Δράκου αριθμός 39 περιοχής Κουκακίου του εγκεκριμένου ρυμοτομικού σχεδίου Δήμου Αθηναίων (νομού Αττικής), (ΦΕΚ 129/ΑΑΠ/2017), 15-06-2017.
Ο Υπουργός Περιβάλλοντος και Ενέργειας
Έχοντας υπόψη:
1. Τις διατάξεις του άρθρου 6 (παράγραφοι 3)α και 3)γ) του νόμου 4067/2012 Νέος Οικοδομικός Κανονισμός (ΦΕΚ 79/Α/2012) και όπως η παράγραφος 3)α τροποποιήθηκε με το άρθρο 48 παράγραφος 2 του νόμου 4178/2013 (ΦΕΚ 174/Α/2013) και ισχύουν.
2. Τις διατάξεις των άρθρων 26 και 27 του νόμου 4030/2011 Νέος τρόπος έκδοσης αδειών δόμησης, ελέγχου κατασκευών και λοιπών διατάξεων (ΦΕΚ 249/Α/2011), όπως τροποποιήθηκαν με το άρθρο 49 (παράγραφοι 6 και 7) του νόμου 4178/2013 Αντιμετώπιση της Αυθαίρετης Δόμησης - Περιβαλλοντικό ισοζύγιο και άλλες διατάξεις (ΦΕΚ 174/Α/2013) και όπως το άρθρο 27 αντικαταστάθηκε με το άρθρο 21 (παράγραφος 4) του νόμου 4258/2014 Διαδικασία Οριοθέτησης και ρυθμίσεις θεμάτων για τα υδατορέματα - ρυθμίσεις Πολεοδομικής νομοθεσίας και άλλες διατάξεις (ΦΕΚ 94/Α/2014) και ισχύουν.
3. Τις διατάξεις του άρθρου 90 του Κώδικα Νομοθεσίας για την Κυβέρνηση και τα κυβερνητικά όργανα, που κυρώθηκε με το πρώτο άρθρο του προεδρικού διατάγματος 63/2005 (ΦΕΚ 98/Α/2005).
4. Το υπ' αριθμόν ΣΑ 119/04-08-2016 έγγραφο του Συμβουλίου Αρχιτεκτονικής Περιφερειακής Ενότητας Κεντρικού Τομέα Αθηνών.
5. Την από 21-11-2016 αιτιολογική έκθεση της Διεύθυνσης Αρχιτεκτονικής Οικοδομικών Κανονισμών και Αδειοδοτήσεων - Τμήμα Διατηρητέων Κτιρίων του Υπουργείου Περιβάλλοντος και Ενέργειας.
6. Το υπ' αριθμόν 39420/21-11-2016 έγγραφο της Διεύθυνσης Αρχιτεκτονικής Οικοδομικών Κανονισμών και Αδειοδοτήσεων - Τμήμα Διατηρητέων Κτιρίων του Υπουργείου Περιβάλλοντος και Ενέργειας.
7. Την από 10-01-2017 (ΥΠΕΝ 1035/10-01-2017) σύμφωνη γνώμη της φερόμενης ιδιοκτήτριας Σωτηρίας Κόλλια.
8. Τα υπ' αριθμόν 398951/19-12-2016, 398980/19-12-2016, 399000/19-12-2016 και 401749/21-12-2016 έγγραφα της Διεύθυνσης Κτιριακής Υποδομής του Δήμου Αθηναίων.
9. Την υπ' αριθμόν 12/συνεδρία 1η/01-02-2017 γνωμοδότηση του Κεντρικού Συμβουλίου Αρχιτεκτονικής.
10. Το γεγονός ότι από τις κανονιστικές διατάξεις της παρούσας απόφασης δεν προκαλείται δαπάνη σε βάρος του κρατικού προϋπολογισμού και του προϋπολογισμού του οικείου οργανισμού τοπικής αυτοδιοίκησης, αποφασίζουμε:
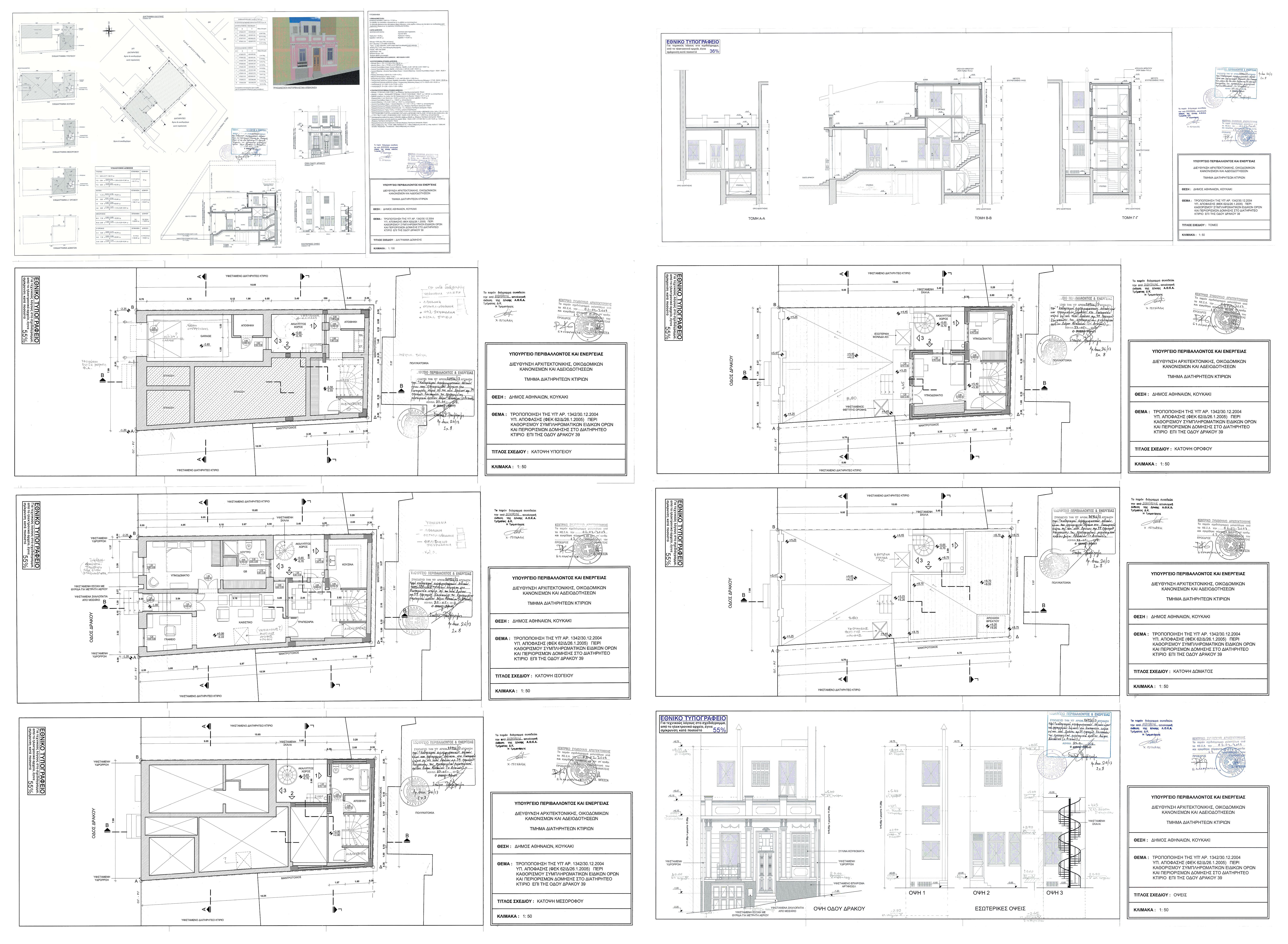
1. Στο κτίριο που βρίσκεται επί της οδού Δράκου αριθμός 39, περιοχής Κουκακίου του εγκεκριμένου ρυμοτομικού σχεδίου Δήμου Αθηναίων (νομού Αττικής), φερόμενο ως ιδιοκτησία Σωτηρίας Κόλλια, που έχει χαρακτηριστεί ως διατηρητέο με την υπ' αριθμόν οίκοθεν 102003/7750/1993 απόφαση Υπουργού Περιβάλλοντος, Χωροταξίας και Δημοσίων Έργων (ΦΕΚ 78/Δ/1993) και στο οποίο είχαν καθορισθεί ειδικοί όροι και περιορισμοί δόμησης με την υπ' αριθμόν 1342/2004 απόφαση του Υφυπουργού Περιβάλλοντος, Χωροταξίας και Δημοσίων Έργων (ΦΕΚ 62/Δ/2004), καθορίζονται συμπληρωματικοί ειδικοί όροι και περιορισμοί δόμησης ως εξής:
Επιτρέπεται:
α. Η αποκατάσταση και επισκευή του διατηρητέου κτιρίου.
β. Η προσθήκη καθ' επέκταση τμήματος υπογείου (ΒΔ όριο του οικοπέδου).
γ. Η προσθήκη καθ' ύψος μεσορόφου και α' ορόφου σε υποχώρηση από την πρόσοψη του κτιρίου στο πίσω όριο του οικοπέδου.
δ. Η κατασκευή νέου φέροντα οργανισμού από οπλισμένο σκυρόδεμα στο τμήμα της προσθήκης.
η. Εσωτερικές διαρρυθμίσεις για λειτουργικούς λόγους.
2. Οι ανωτέρω επιτρεπόμενες επεμβάσεις πραγματοποιούνται χωρίς υπέρβαση του υφιστάμενου ποσοστού κάλυψης του διατηρητέου κτιρίου και σύμφωνα με τις λοιπές ισχύουσες πολεοδομικές διατάξεις της περιοχής και φαίνονται στα σχετικά 8 πρωτότυπα διαγράμματα (Διάγραμμα Δόμησης σε κλίμακα 1:100, Κατόψεις, Τομές και Όψεις σε κλίμακα 1:50), όπως εγκρίθηκαν από το Συμβούλιο Αρχιτεκτονικής και προσαρμόστηκαν στις υποδείξεις της Διεύθυνσης Αρχιτεκτονικής Οικοδομικών Κανονισμών και Αδειοδοτήσεων - Τμήμα Διατηρητέων Κτιρίων, που θεωρήθηκαν από τον Προϊστάμενο της Διεύθυνσης Τοπογραφικών Εφαρμογών και Γεωχωρικών Πληροφοριών με την 24926/2017 πράξη του και που αντίτυπά τους σε φωτοσμίκρυνση συνδημοσιεύονται με την παρούσα απόφαση.
3. Κατά τα λοιπά εξακολουθούν να ισχύουν οι διατάξεις της υπ' αριθμόν οίκοθεν 102003/7750/1993 απόφασης του Υπουργού Περιβάλλοντος, Χωροταξίας και Δημοσίων Έργων περί χαρακτηρισμού του κτιρίου ως διατηρητέου (ΦΕΚ 78/Δ/1993).
4. Από τη δημοσίευση της παρούσας η υπ' αριθμόν 1342/2004 απόφαση του Υφυπουργού Περιβάλλοντος, Χωροταξίας και Δημοσίων Έργων (ΦΕΚ 62/Δ/2005) παύει να ισχύει.
5. Η ισχύς της παρούσας απόφασης αρχίζει από τη δημοσίευσή της στην Εφημερίδα της Κυβερνήσεως.

Η απόφαση αυτή να δημοσιευθεί στην Εφημερίδα της Κυβερνήσεως.
Αθήνα, 23-05-2017
Ο Υπουργός