| Συνδεθείτε στην Υπηρεσία Νομοσκόπιο | | | | | Νέοι χρήστες | | Εάν είστε νέος χρήστης, θα πρέπει να δημιουργήσετε ένα ΔΩΡΕΑΝ λογαριασμό προκειμένου να φύγει το παράθυρο αυτό και να αποκτήσετε πλήρη πρόσβαση στην υπηρεσία Νομοσκόπιο. | | Δημιουργία νέου λογαριασμού | | |
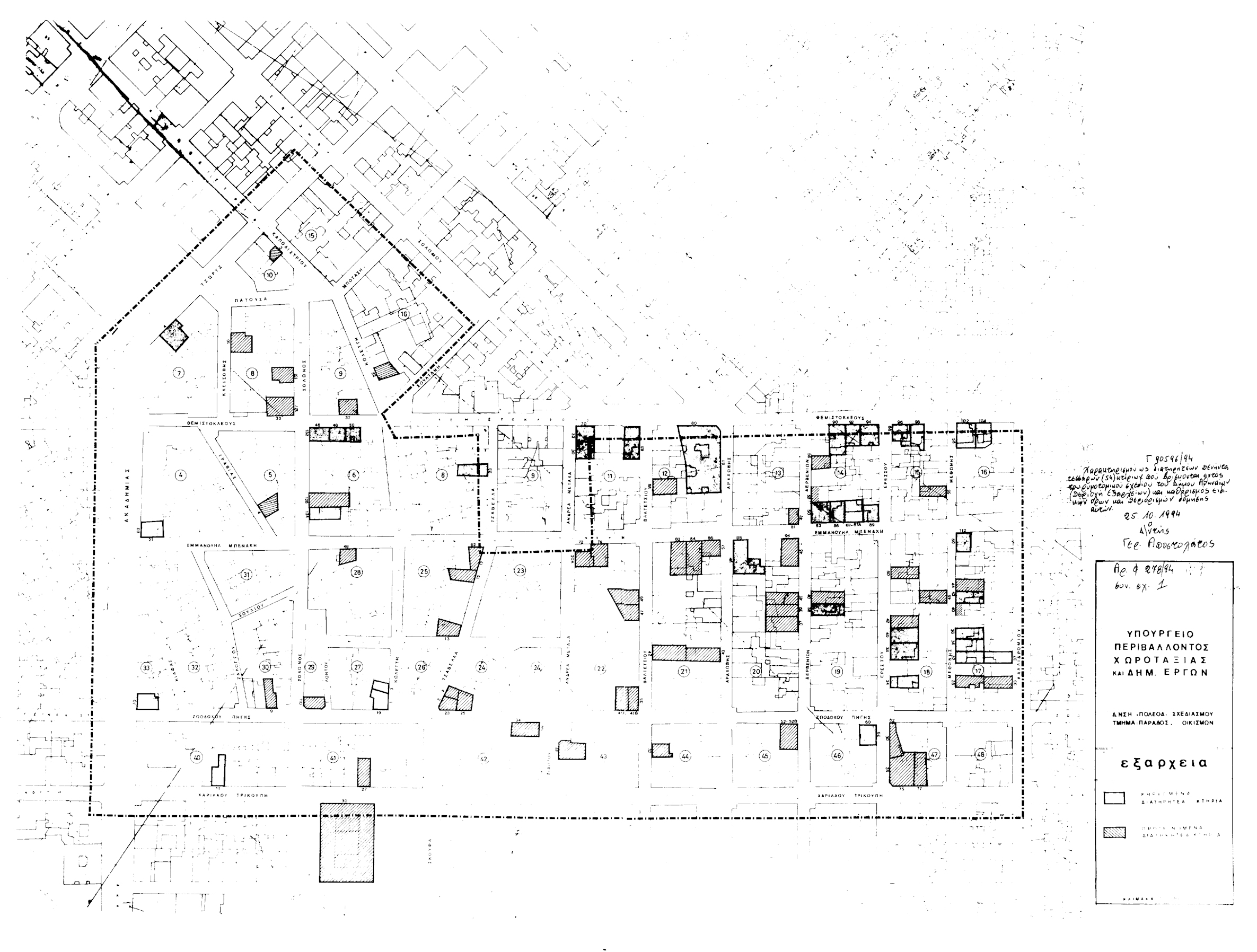
Απόφαση 90596/6677/1994: Χαρακτηρισμός ως διατηρητέων 54 κτιρίων που βρίσκονται εντός του ρυμοτομικού σχεδίου του Δήμου Αθηναίων (περιοχή Εξαρχείων) και καθορισμός ειδικών όρων και περιορισμών δόμησης αυτών, (ΦΕΚ 1196/Δ/1994), 17-11-1994.
Ο Υπουργός Περιβάλλοντος, Χωροταξίας και Δημοσίων Έργων
Έχοντας υπόψη:
1. Τις διατάξεις των άρθρων 3 και 4 (παράγραφος 2) του νόμου 1577/1985 Γενικός Οικοδομικός Κανονισμός (ΦΕΚ 210/Α/1985), όπως τροποποιήθηκαν με το άρθρο 1 (παράγραφοι 1 και 2) του του νόμου 1772/1988 Τροποποίηση διατάξεων του νόμου 1577/1985 και άλλες διατάξεις (ΦΕΚ 91/Α/1988).
2. Την 67598/758/1992 απόφαση του Υφυπουργού Περιβάλλοντος, Χωροταξίας και Δημοσίων Έργων Μεταβίβαση αρμοδιοτήτων του Υφυπουργού Περιβάλλοντος Χωροταξίας και Δημοσίων Έργων στο Γενικό Γραμματέα, στους Γενικούς Διευθυντές και στους προϊσταμένους Διευθύνσεων και Τμημάτων του Υπουργείου Περιβάλλοντος Χωροταξίας και Δημοσίων Έργων (ΦΕΚ 435/Β/1992).
3. Τις διατάξεις της παραγράφου Β του άρθρου 1 του προεδρικού διατάγματος 28/1993 Καθορισμός αρμοδιοτήτων που διατηρούνται από τον Υπουργό και τις περιφερειακές υπηρεσίες διανομαρχιακού επιπέδου του Υπουργείου Περιβάλλοντος, Χωροταξίας και Δημοσίων Έργων (ΦΕΚ 9/Α/1993).
4. Την από 05-05-1994 αιτιολογική έκθεση της Διεύθυνσης Πολεοδομικού Σχεδιασμού, Τμήμα Παραδοσιακών Οικισμών.
5. Το 68360/1994 έγγραφο του Δήμου Αθηναίων.
6. Την παρέλευση της προθεσμίας που ορίζεται από τις διατάξεις της παραγράφου 2 του άρθρου 4 του νόμου 1577/1985 (ΦΕΚ 210/Α/1985) όπως τροποποιήθηκε με την παράγραφο 2 του άρθρου 1 του νόμου 1772/1988 χωρίς να περιέλθουν στη Διεύθυνση τυχόν αντιρρήσεις των ενδιαφερομένων.
7. Τις διατάξεις του άρθρου 29Α του νόμου 1558/1985 Κυβέρνηση και Κυβερνητικά Όργανα (ΦΕΚ 137/Α/1985)" όπως αυτό προστέθηκε με το άρθρο 27 του νόμου 2081/1992 (ΦΕΚ 154/Α/1992).
8. Το γεγονός ότι από τις κανονιστικές διατάξεις αυτής της απόφασης δεν προκαλείται δαπάνη σε βάρος του κρατικού προϋπολογισμού και του οικείου οργανισμού τοπικής αυτοδιοίκησης, Αποφασίζουμε:
1. Χαρακτηρίζονται ως διατηρητέα 54 κτίρια που βρίσκονται εντός του ρυμοτομικού σχεδίου του Δήμου Αθηναίων (περιοχή Εξαρχείων), όπως αυτά αναφέρονται αριθμημένα με αύξοντα αριθμό από 1 έως 54 στον παρακάτω πίνακα και φαίνονται με μαύρη διαγράμμιση στο σχετικό πρωτότυπο διάγραμμα σε κλίμακα 1:1000 που θεωρήθηκε από τον Προϊστάμενο της Διεύθυνσης Τοπογραφικών Εφαρμογών με την 90596/1994 πράξη του που αντίτυπό του σε φωτοσμίκρυνση δημοσιεύεται με την παρούσα απόφαση.
Πίνακας διατηρητέων κτιρίων
1. Ανδρέα Μεταξά 20Α
2. Αραχώβης 43
3. Βαλτετσίου 32
4. Βαλτετσίου 42
5. Βαλτετσίου 47
6. Βαλτετσίου 49
7. Βαλτετσίου 58
8. Γραβιάς 4
9. Δερβενίων 37
10. Δερβενίων 39
11. Δερβενίων 40
12. Δερβενίων 41
13. Δερβενίων 52 (όψη)
14. Δερβενίων 56
15. Διδότου 46
16. Εμμανουήλ Μπενάκη 48
17. Εμμανουήλ Μπενάκη 74
18. Εμμανουήλ Μπενάκη 81 και Δερβενίων
19. Εμμανουήλ Μπενάκη 82
20. Εμμανουήλ Μπενάκη 84
21. Εμμανουήλ Μπενάκη 86 και Αραχώβης 57
22. Εμμανουήλ Μπενάκη 94 και Δερβενίων 45 (δύο κτίρια στο ίδιο οικόπεδο)
23. Ερεσού 42
24. Ερεσού 50
25. Ζωοδόχου Πηγής 9
26. Ζωοδόχου Πηγής 23 και Τζαβέλλα 2
27. Ζωοδόχου Πηγής 25
28. Ζωοδόχου Πηγής 34 και Διδότου 59
29. Ζωοδόχου Πηγής 41 Α
30. Ζωοδόχου Πηγής 41 Β και Βαλτετσίου 35
31. Ζωοδόχου Πηγής 52 - 52Β και Δερβενίων
32. Ζωοδόχου Πηγής 62 και Ερεσού 30
33. Θεμιστοκλέους 37
34. Καλλιδρομίου 33
35. Καποδιστρίου 3
36. Κλεισόβης 10
37. Κωλέττη 32
38. Μεθώνης 28
39. Μεθώνης 40 (όψη)
40. Μεθώνης 44
41. Μεθώνης 45
42. Μεθώνης 55
43. Μεσολογγίου 13 και Τζαβέλλα
44. Σόλωνος 110 Ζωοδόχου Πηγής και Λόντου 1
45. Σόλωνος 126
46. Σόλωνος 127 και Θεμιστοκλέους 33
47. Σόλωνος 131
48. Τζαβέλλα 4
49. Τζαβέλλα 15
50. Τζαβέλλα 17 και Εμμανουήλ Μπενάκη 62
51. Χαριλάου Τρικούπη 27
52. Χαριλάου Τρικούπη 30 και Σόλωνος 104, Μαυρομιχάλη 17 (Πανεπιστήμιο Αθηνών Χημείο)
53. Χαριλάου Τρικούπη 75 και Ερεσού 28
54. Χαριλάου Τρικούπη 77.
2. Ως διατηρητέο χαρακτηρίζεται το αρχικό εκάστοτε κτίριο, καθώς και τα στοιχεία του περιβάλλοντος αυτού χώρου (μάνδρες, αυλόθυρες) καθώς και οι εναρμονιζόμενες με αυτό μεταγενέστερες προσθήκες, όχι όμως και τα πάσης φύσεως καθ' ύψος ή κατ' επέκταση υπάρχοντα προσκτίσματα, που αλλοιώνουν το αρχικό κτίριο. Ο καθορισμός των προσκτισμάτων και οι επεμβάσεις που πρέπει να γίνουν σε αυτά πραγματοποιείται από την Επιτροπή Πολεοδομικού και Αρχιτεκτονικού Ελέγχου (ΕΠΑΕ).
Ειδικότερα για τα κτίρια Δερβενίων 52 και Μεθώνης 40 διατηρητέα χαρακτηρίζεται μόνον η όψη τους (σε βάθος μέχρι 4 m από την οικοδομική γραμμή).
3. Στα χαρακτηριζόμενα ως διατηρητέα κτίρια απαγορεύεται κάθε αφαίρεση, αλλοίωση ή καταστροφή τόσο των επί μέρους αρχιτεκτονικών και διακοσμητικών στοιχείων τους, όσο και του κτιρίου συνολικά εκτός των προσκτισμάτων ή των στοιχείων των κτιρίου για τα οποία η Επιτροπή Πολεοδομικού και Αρχιτεκτονικού Ελέγχου έχει γνωμοδοτήσει για την αφαίρεση τους.
4. Επιτρέπεται η επισκευή, ο εκσυγχρονισμός των εγκαταστάσεων, η στατική ενίσχυση και η εσωτερική διαρρύθμιση των κτιρίων, που χαρακτηρίζονται ως διατηρητέα εφόσον δεν αλλοιώνεται ο γενικός αρχιτεκτονικός χαρακτήρας τους και δεν θίγονται τα διατηρητέα στοιχεία τους.
5. Σε περίπτωση αποκατάστασης κτιρίου, που έχει υποστεί μεγάλες αλλοιώσεις και υπάρχουν ανεπαρκή στοιχεία για το ίδιο το κτίριο, πρέπει να λαμβάνεται υπόψη η βασική αρχιτεκτονική σύνθεση και η συγγενής μορφολογία και τεχνολογία των όψεων των κτιρίων της περιοχής.
6. Αιτήσεις για προσθήκες στα διατηρητέα κτίρια, αποστέλλονται από την Πολεοδομική Υπηρεσία στην αρμόδια Υπηρεσία του Υπουργείου Περιβάλλοντος Χωροταξίας και Δημοσίων Έργων με γνώμη της Επιτροπής Πολεοδομικού και Αρχιτεκτονικού Ελέγχου για ειδική ρύθμιση σύμφωνα με τις διατάξεις της παραγράφου 2 του άρθρου 4 του νόμου 1577/1985 περί Γενικού Οικοδομικού Κανονισμού εφ' όσον δεν παραβλάπτονται τα διατηρητέα κτίρια και ο χώρος που τα περιβάλλει.
7. α) Δεν επιτρέπεται η τοποθέτηση φωτεινών επιγραφών και διαφημίσεων στα χαρακτηριζόμενα ως διατηρητέα κτίρια.
Επιτρέπεται μόνο η τοποθέτηση επιγραφών περιορισμένων διαστάσεων που πληροφορούν για τυχόν χρήση των χώρων των κτιρίων.
β) Κατ' εξαίρεση επιτρέπεται η τοποθέτηση φωτεινών επιγραφών στο ισόγειο καταστημάτων που αναφέρονται αποκλειστικά στο όνομα και στο αντικείμενο των εργασιών τους. Οι φωτεινές επιγραφές στα ισόγεια των καταστημάτων συμπεριλαμβανομένων και εκείνων που τοποθετούνται μέσα στις προθήκες, έχουν χρώμα λευκό ή κίτρινο, σταθερό και συνεχές και αποτελούνται από μεμονωμένα στοιχεία, γράμματα, αριθμούς.
8. Για οποιαδήποτε επέμβαση στο εξωτερικό και εσωτερικό των διατηρητέων κτιρίων, διατηρητέων όψεων και στον περιβάλλοντα χώρο τους, καθώς και για την τοποθέτηση επιγραφών απαιτείται η έγκριση της Επιτροπής Πολεοδομικού και Αρχιτεκτονικού Ελέγχου.
9. Η ισχύς της παρούσας απόφασης αρχίζει από τη δημοσίευσή της στην Εφημερίδα της Κυβερνήσεως.
Η απόφαση αυτή να δημοσιευθεί στην Εφημερίδα της Κυβερνήσεως.

Αθήνα, 25-10-1994
Με εντολή Υφυπουργού
Ο Γενικός Γραμματέας