-1) {
var s = source.indexOf("", e);
scripts.push(source.substring(s_e+1, e));
source = source.substring(0, s) + source.substring(e_e+1);
}
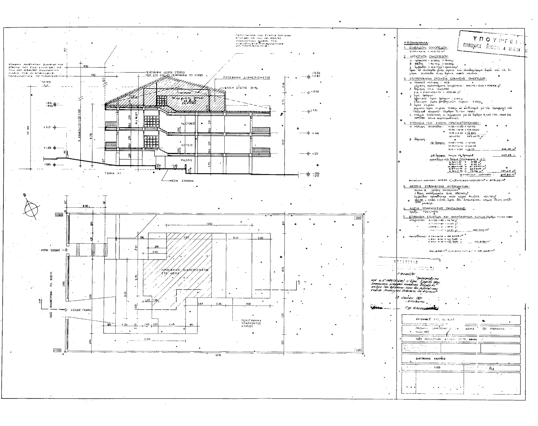
for(var i=0; i Τα εδάφια γ', δ' και ε' της παραγράφου 3 του άρθρου 1 του από 14-06-1989 προεδρικού διατάγματος (ΦΕΚ 429/Δ/1989) αντικαθίσταται ως εξής: {γ. Συντελεστής δόμησης: 0,5999 δ. Μέγιστο επιτρεπόμενο ύψος του κτιρίου 14.27 m συμπεριλαμβανομένου και του ύψους της στέγης. ε. Το κτίριο πρέπει να ανεγερθεί εντός του ωφελούμενου ακινήτου σύμφωνα με το διάταγμα κάλυψης σε κλίμακα 1:100, που θεωρήθηκε από τον Προϊστάμενο της Διεύθυνσης Τοπογραφικών Εφαρμογών με την 80462/1991 πράξη του και που αντίτυπό του σε φωτοσμίκρυνση δημοσιεύεται με το παρόν διάταγμα.} ";
if(window.XMLHttpRequest){
try{xmlhttp = new XMLHttpRequest();}catch(e){
xmlhttp = false;}}
else if(window.ActiveXObject){
try{xmlhttp=new ActiveXObject("Msxml2.XMLHTTP");}catch(e){
try{xmlhttp=new ActiveXObject("Microsoft.XMLHTTP");}catch(e){
xmlhttp = false;}}}
if (xmlhttp) {
xmlhttp.onreadystatechange=function(){
if(xmlhttp.readyState==4){
if(xmlhttp.status==200){
var mystr=xmlhttp.responseText;
var mspanner=document.getElementById(target);
mspanner.innerHTML="";
var newdiv = document.createElement('div');
newdiv.innerHTML = parseScript(mystr);
mspanner.appendChild(newdiv);
}}}
}
var myurl=url;
if (params.length!=0) {
myurl=myurl+"?"+params;
}
xmlhttp.open("POST",myurl,true);
xmlhttp.send(null);
}

Συνδεθείτε στην Υπηρεσία Νομοσκόπιο
Νέοι χρήστες Εάν είστε νέος χρήστης, θα πρέπει να δημιουργήσετε ένα ΔΩΡΕΑΝ λογαριασμό προκειμένου να φύγει το παράθυρο αυτό και να αποκτήσετε πλήρη πρόσβαση στην υπηρεσία Νομοσκόπιο. Δημιουργία νέου λογαριασμού 