| Συνδεθείτε στην Υπηρεσία Νομοσκόπιο | | | | | Νέοι χρήστες | | Εάν είστε νέος χρήστης, θα πρέπει να δημιουργήσετε ένα ΔΩΡΕΑΝ λογαριασμό προκειμένου να φύγει το παράθυρο αυτό και να αποκτήσετε πλήρη πρόσβαση στην υπηρεσία Νομοσκόπιο. | | Δημιουργία νέου λογαριασμού | | |
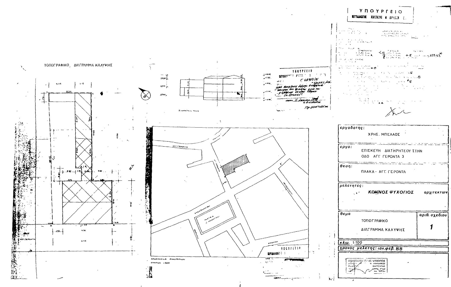
1. Εγκρίνεται η μεταφορά του συντελεστή δόμησης του ακινήτου (βαρυνομένου) που βρίσκεται εντός του ρυμοτομικού σχεδίου Αθηνών (νομού Αττικής) επί της οδού Αγγέλου Γέροντα αριθμός 3 στην Πλάκα, το οποίο έχει χαρακτηρισθεί ως διατηρητέο με το από 24-10-1980 προεδρικό διάταγμα (ΦΕΚ 617/Δ/1980) και του οποίου την αποκλειστική κυριότητα έχει η παραπάνω συναινούσα στη μεταφορά του συντελεστή εταιρεία Εργοδομική Τουριστικές - Ξενοδοχειακές και Οικοδομικές Επιχειρήσεις, Αγίας Πελαγίας ανώνυμη εταιρεία όπως το βαρυνόμενο ακίνητο φαίνεται με στοιχεία Α, Β, Γ, Ε, Ζ, Α στο σχετικό πρωτότυπο διάγραμμα σε κλίμακα 1:100 που θεωρήθηκε από τον Προϊστάμενο της Διεύθυνσης Τοπογραφικών Εφαρμογών με την 68907/1991 πράξη και που αντίτυπο του σε φωτοσμίκρυνση δημοσιεύεται με το παρόν διάταγμα.
2. Τα ειδικότερα στοιχεία του βαρυνομένου ακινήτου και της μεταφοράς του συντελεστή δόμησης είναι τα εξής:
α) Εμβαδόν οικοπέδου: 232,17 m2
β) Συντελεστής δόμησης: 1,8
γ) Ποσοστό κάλυψης: 70%.
δ) Επιτρεπόμενη δόμηση: 232,17 x 1,8=417,90 m2
ε) Υπάρχουσα δόμηση: 229,63 m2
στ) Μεταφερόμενες δομήσιμες επιφάνειες: 188,27 m2 (23,46 m2 από ισόγειο και 164,81 m2 από ορόφους).

ΣΗΜΕΙΩΣΗ: Το παρόν άρθρο καταργήθηκε με το άρθρο 1 της υπ' αριθμόν 21165/2017 απόφασης (ΦΕΚ 100/ΑΑΠ/2017).
|