33-gr-2
33-gr-3
33-gr-4
33-gr-5
33-gr-6

Ηχορύπανση Εργοταξίων

Array
179,00 €

Πληροφορίες προϊόντος

Έκδοση 18

Εκτύπωση

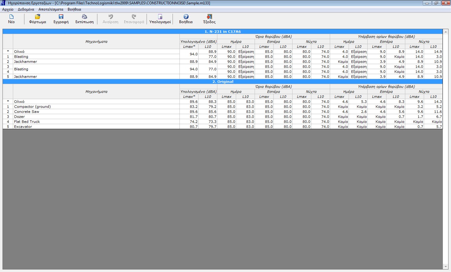
Το πρόγραμμα αυτό βασίζεται στο γνωστό μοντέλο Roadway Construction Noise Model v1.1 της Federal Highway Administration (FHWA). Χρησιμοποιείται για τη διευκόλυνση της πρόβλεψης της ηχορύπανσης από εργοτάξια. Εξαιτίας του γεγονότος ότι η κατασκευή λαμβάνει χώρα πλησίον κατοικιών και εμπορικών θέσεων, ο θόρυβος που προέρχεται από τις εργασίες θα πρέπει να περιορίζεται και να παρακολουθείται με σκοπό την αποφυγή επιπτώσεων στις τριγύρω χρήσεις γης. Επιπρόσθετα, ο υπερβολικός θόρυβος μπορεί να έχει επιπτώσεις στην ίδια την πρόοδο των εργασιών. Σε κάθε εργοτάξιο θα πρέπει να ισορροπούνται οι ανάγκες αφενός μεν των τριγύρω περιοχών για ησυχία και ηρεμία και αφετέρου οι ανάγκες του εργοταξίου για γρήγορη πρόοδο των εργασιών.

Δυνατότητες

  • Απεριόριστος αριθμός αποδεκτών.
  • Απεριόριστος αριθμός μηχανημάτων.
  • Παραμετροποιήσιμα κριτήρια ορίων θορύβου
  • Βάση δεδομένων μηχανημάτων που μπορεί να παραμετροποιηθεί από το χρήστη.
  • Χωριστοί υπολογισμοί για ημέρα, εσπέρα και νύχτα.
  • Το πρόγραμμα είναι πλήρως συμβατό με το μοντέλο Roadway Construction Noise Model v1.1 της Federal Highway Administration (FHWA).
  • Εισάγετε δεδομένα από αρχεία κειμένου ASCII ή απευθείας στον editor του προγράμματος.
  • Πινακοποιημένα αποτελέσματα.
  • Με ένα κλικ μπορείτε να εξάγετε το σύνολο ή μέρος των δεδομένων και των υπολογισμών σε εξωτερικό αρχείο ASCII, στο Microsoft Word και / ή στο Microsoft Excel.
  • Μορφοποιημένο Microsoft Word για ακόμα καλύτερες εκτυπώσεις.
  • Αναίρεση και επαναφορά πολλαπλών επιπέδων.
  • Επαγγελματικές εκτυπώσεις αποτελεσμάτων.
  • Συμβουλή ημέρας.
  • Πλήρες εγχειρίδιο χρήσης.
  • Παραδείγματα χρήσης.
  • Live Update.
  • Ελληνικά και Αγγλικά.
© 2026 Τεχνολογισμική. Με την επιφύλαξη παντός νόμιμου δικαιώματος.