| Συνδεθείτε στην Υπηρεσία Νομοσκόπιο | | | | | Νέοι χρήστες | | Εάν είστε νέος χρήστης, θα πρέπει να δημιουργήσετε ένα ΔΩΡΕΑΝ λογαριασμό προκειμένου να φύγει το παράθυρο αυτό και να αποκτήσετε πλήρη πρόσβαση στην υπηρεσία Νομοσκόπιο. | | Δημιουργία νέου λογαριασμού | | |
Απόφαση 220762/2016: Άρση ρυμοτομικής απαλλοτρίωσης με τροποποίηση του εγκεκριμένου ρυμοτομικού σχεδίου στα οικοδομικά τετράγωνα 479 - 480 του Δήμου Αμαρουσίου, σε συμμόρφωση δικαστικής απόφασης, για άρση ρυμοτομικής δέσμευσης, (ΦΕΚ 51/ΑΑΠ/2016), 29-03-2016.
Ο Εντεταλμένος Περιφερειακός Σύμβουλος Αττικής
Έχοντας υπόψη:
1. Τις διατάξεις του νόμου 3852/2010 (ΦΕΚ 87/Α/2010) για τη Νέα Αρχιτεκτονική της Αυτοδιοίκησης και της Αποκεντρωμένης Διοίκησης - Πρόγραμμα Καλλικράτης, άρθρο 186 Κεφάλαιο ΣΤ παράγραφος 39 καθώς και τα άρθρα 6 και 280 παράγραφος Ι (σχετικά με Συμβούλια Πολεοδομικών Θεμάτων και Αμφισβητήσεων).
2. Τις διατάξεις του προεδρικού διατάγματος 145/2010 (ΦΕΚ 238/Α/2010) για τον Οργανισμό Περιφέρειας Αττικής, όπως τροποποιήθηκε με την 44403/2011 απόφαση Υπουργού Εσωτερικών (ΦΕΚ 2494/Β/2011).
3. Τις διατάξεις του άρθρου 90 του Κώδικα Νομοθεσίας για την Κυβέρνηση και τα κυβερνητικά όργανα, που κυρώθηκε με το άρθρο πρώτο του προεδρικού διατάγματος 63/2005 (ΦΕΚ 98/Α/2005).
4. Τις διατάξεις της με αριθμό οίκοθεν 177070/2014 (ΦΕΚ 2542/Β/2014) απόφασης της Περιφερειάρχη Αττικής, περί ανάθεσης - μεταβίβασης αρμοδιοτήτων στους Αντιπεριφερειάρχες.
5. Τις διατάξεις του από 17-07-1923 νομοθετικού διατάγματος (ΦΕΚ 228/Α/1923) περί σχεδίων πόλεων, κωμών και συνοικισμών του Κράτους και οικοδομής αυτών και ειδικότερα τα άρθρα 1, 3, 7, 9 και 70 όπως μεταγενέστερα τροποποιήθηκαν και συμπληρώθηκαν.
6. Τις διατάξεις του νόμου 1337/1983 (ΦΕΚ 33/Α/1983), όπως ισχύουν.
7. Τις διατάξεις του νόμου 1577/1985 και ειδικότερα το άρθρο 29, όπως ισχύουν με το άρθρο 10 του νόμου 3044/2002 (ΦΕΚ 197/Α/2002).
8. Τις διατάξεις του Κώδικα Βασικής Πολεοδομικής Νομοθεσίας (ΦΕΚ 580/Δ/1999) και ειδικότερα τα άρθρα 152, 153, 154 και 160.
9. Τις διατάξεις του άρθρου 29 του νόμου 2831/2000 (ΦΕΚ 140/Α/2000), όπως αντικαταστάθηκαν από το άρθρο 10 του νόμου 3044/2002 (ΦΕΚ 197/Α/2002).
10. Τις διατάξεις του νόμου 2882/2001 (ΦΕΚ 17/Α/2001) για τον Κώδικα Αναγκαστικών Απαλλοτριώσεων και του νόμου 2985/2002 (ΦΕΚ 18Α'/2002), όπως ισχύουν σήμερα.
11. Τις διατάξεις του νόμου 4030/2011, για το Νέο τρόπο έκδοσης αδειών δόμησης, ελέγχου κατασκευών και λοιπές διατάξεις (ΦΕΚ 249/Α/2011), άρθρα 31 και 32, όπως τροποποιήθηκαν και ισχύουν.
12. Τις διατάξεις της με αριθμό πρωτοκόλλου Φ39/5380/2012 απόφασης Γενικού Γραμματέα Αποκεντρωμένης Διοίκησης Αττικής, για Ανασυγκρότηση των Συμβουλίων Πολεοδομικών Θεμάτων και Αμφισβητήσεων στην έδρα κάθε περιφερειακής ενότητας της Περιφέρειας Αττικής, κατ' εφαρμογή του άρθρου 30 του νόμου 4030/2011, όπως τροποποιήθηκε και ισχύει.
13. Τις διατάξεις του νόμου 4067/2012, για το Νέο Οικοδομικό Κανονισμό (ΦΕΚ 79/Α/2012), άρθρα 31 παράγραφος 2, 32 και 33, όπως τροποποιήθηκαν και ισχύουν.
14. Το από (ΠΔ) 31-01-1970 προεδρικό διάταγμα (ΦΕΚ 21/Δ/1970) Περί τροποποιήσεως και επεκτάσεως των ρυμοτομικών σχεδίων Αμαρουσίου και Χαλανδρίου και τροποποιήσεως και καθορισμού όρων και περιορισμών δόμησης των οικοπέδων αυτών για τη ρυμοτομία του Δήμου Αμαρουσίου, όπως ισχύει σήμερα, μετά τις εγκρίσεις τροποποιήσεων του ρυμοτομικού σχεδίου (ΦΕΚ 552/Δ/1992), (ΦΕΚ 1045/Δ/1994), (ΦΕΚ 1176/Δ/2005)).
15. Την με αριθμό 103571/7467/1991 απόφαση Υπουργού Περιβάλλοντος, Χωροταξίας και Δημοσίων Έργων για Έγκριση Γενικού Πολεοδομικού Σχεδίου (ΓΠΣ) του Δήμου Αμαρουσίου (νομού Αττικής), (ΦΕΚ 47/Δ/1989), όπως ισχύει σήμερα.
16. Την υπ' αριθμόν 4751/2001 απόφαση του Διοικητικού Εφετείου Αθηνών (Τμήμα ΣΤ1, Τριμελές).
17. Την με αριθμό 1107/2009 απόφαση του Διοικητικού Πρωτοδικείου Αθηνών (Τμήμα 25ο τριμελές).
18. Την με αριθμό πρωτοκόλλου 38085/2014 Εισήγηση της Διεύθυνσης Χωρικού Σχεδιασμού της Περιφέρειας Αττικής προς το Συμβούλιο Πολεοδομικών Θεμάτων και Αμφισβητήσεων, Περιφερειακής Ενότητας Βόρειου Τομέα Αθηνών.
19. Το με αριθμό 7 πρακτικό, θέμα 4ο, της από 08-07-2014 συνεδρίασης, γνωμοδότηση του Συμβουλίου Πολεοδομικών Θεμάτων και Αμφισβητήσεων Περιφερειακής Ενότητας Βόρειου Τομέα Αθηνών.
20. Το με αριθμό πρωτοκόλλου 150778/06-08-2014 έγγραφο της Υπηρεσίας μας προς το Δήμο Αμαρουσίου, για να προβεί στις απαιτούμενες ενέργειες δημοσιοποίησης.
21. Τη με αριθμό πρωτοκόλλου 186025/24-09-2014 αίτηση των ενδιαφερόμενων, με την οποία ενημερώνουν ότι ο Δήμος Αμαρουσίου δεν έχει προβεί στις απαιτούμενες ενέργειες δημοσιοποίησης εντός του προβλεπόμενου χρονικού διαστήματος και αιτούνται την προώθηση της διαδικασίας της τροποποίησης, ως άπρακτη.
22. Το με αριθμό πρωτοκόλλου 186025/08-10-2014 έγγραφο της Υπηρεσίας μας προς το Δήμο Αμαρουσίου, για να αποστείλει άμεσα τα σχετικά έγγραφα δημοσιοποίησης.
23. Τα νόμιμα δικαιολογητικά που περιέχονται στο σχετικό φάκελο της άρσης της απαλλοτρίωσης.
24. Τη με αριθμό οίκοθεν 232641/25-11-2014 απόφαση Περιφερειάρχη Αττικής (ΦΕΚ 3203/Β/2014) περί μεταβίβασης αρμοδιοτήτων της Περιφερειάρχη Αττικής.
25. Το υπ' αριθμόν πρωτοκόλλου ΥΣ/28-11-2014 έγγραφο της Γενικής Διεύθυνσης Ποιότητας Ζωής.
26. Το υπ' αριθμόν πρωτοκόλλου 247375/09-02-2015 έγγραφο της Υπηρεσίας προς το αρμόδιο Συμβούλιο Πολεοδομικών Θεμάτων και Αμφισβητήσεων Περιφερειακής Ενότητας Βόρειου Τομέα.
27. Το υπ' αριθμόν 84/13-03-2015 έγγραφο του Συμβουλίου Πολεοδομικών Θεμάτων και Αμφισβητήσεων Περιφερειακής Ενότητας Βόρειου Τομέα με το οποίο διαβιβάστηκε στην Υπηρεσία, απόσπασμα του υπ' αριθμόν 2ου πρακτικού της 05-03-2015 Συνεδρίασης Συμβουλίου Πολεοδομικών Θεμάτων και Αμφισβητήσεων.
28. Τις με αριθμό πρωτοκόλλου 220762/16-11-2015 και 206258/26-10-2016 αιτήσεις Δημητρίου Καλογερόπουλου, Αγγελικής Γιαννόπουλου και Δημητρίου Καλογερόπουλου αντίστοιχα, στην Υπηρεσία.
29. Το με αριθμό πρωτοκόλλου 052235/19-10-2015 έγγραφο του Δήμου Αμαρουσίου, (αριθμός πρωτοκόλλου 201623/20-10-2015 Διεύθυνσης Χωρικού Σχεδιασμού).
30. Τη με αριθμό 102/2015 απόφαση Δημοτικού Συμβουλίου Αμαρουσίου.
31. Τη με αριθμό 174/2015 απόφαση Δημοτικού Συμβουλίου Αμαρουσίου, 4η αναμόρφωση προϋπολογισμού Δήμου Αμαρουσίου οικονομικού έτους 2015.
32. Τη με αριθμό πρωτοκόλλου 229483/2015/2016 απόφαση της Περιφερειάρχη Αττικής, με την οποία Ακυρώνεται η με αριθμό 1/2015 Πράξη Προσκύρωσης και Αναλογισμού αποζημίωσης λόγω ρυμοτομίας ιδιοκτησιών στα οικοδομικά τετράγωνα 479 και 480 της περιοχής 'Εργατικές κατοικίες' του Δήμου Αμαρουσίου.
Και επειδή:
1. Το Διοικητικό Εφετείο Αθηνών, με την με αριθμό 4751/2001 απόφαση του, ανακάλεσε αυτοδίκαια την 15/1992 πράξη αναλογισμού αποζημίωσης, εφόσον πέρασε άπρακτη η προθεσμία 18 μηνών, χωρίς να αποδοθεί η οφειλόμενη αποζημίωση στους ιδιοκτήτες από το Δήμο Αμαρουσίου.
2. Με την από 22-09-2005 απόφαση Νομάρχη (ΦΕΚ 1176/Δ/2005) εγκρίθηκε η άρση ρυμοτομικής απαλλοτρίωσης, με τροποποίηση του εγκεκριμένου ρυμοτομικού σχεδίου, σε τμήμα των οικοδομικών τετραγώνων 479-480 του Δήμου Αμαρουσίου, σε συμμόρφωση προς την υπ' αριθμόν 4751/2001 απόφαση του Διοικητικού Εφετείου Αθηνών και η επανεπιβολή ρυμοτομικής απαλλοτρίωσης, με τροποποίηση του εγκεκριμένου ρυμοτομικού σχεδίου, στο πιο πάνω εδαφικό τμήμα.
3. Με την με αριθμό 1107/2009 απόφαση του Διοικητικού Πρωτοδικείου Αθηνών (Τμήμα 25° τριμελές), κρίνεται ότι, το δικαστήριο είναι αναρμόδιο να εξετάσει την προσφυγή των αιτούντων, κατά το μέρος που στρέφεται κατά της σιωπηρής άρνησης του Νομάρχη Αθηνών να ανακαλέσει τη μη νόμιμη (κατά τους προσφεύγοντες) απόφαση του, με την οποία επανεπιβλήθηκε η απαλλοτρίωση σε τμήματα της ιδιοκτησίας τους και παραπέμπει την υπόθεση στο Συμβούλιο της Επικρατείας.
4. Το Τμήμα Πολεοδομικών Θεμάτων της Διεύθυνσης Χωρικού Σχεδιασμού της Περιφέρειας Αττικής, με την υπ' αριθμόν 38085/02-05-2014 Εισήγηση του, εισηγήθηκε προς το Συμβούλιο Πολεοδομικών Θεμάτων και Αμφισβητήσεων Περιφερειακής Ενότητας Βόρειου Τομέα Αθηνών, σε συμμόρφωση προς τη δικαστική απόφαση, την έγκριση της άρσης της ρυμοτομικής απαλλοτρίωσης με τροποποίηση του εγκεκριμένου ρυμοτομικού σχεδίου στα οικοδομικά τετράγωνα 479 - 480 του Δήμου Αμαρουσίου.
5. Το Συμβούλιο Πολεοδομικών Θεμάτων και Αμφισβητήσεων Περιφερειακής Ενότητας Βόρειου Τομέα Αθηνών, με το με αριθμό 7ο πρακτικό, θέμα 4ο, της από 08-07-2014 συνεδρίασης, γνωμοδότησε ομόφωνα υπέρ της έγκρισης της άρσης της ρυμοτομικής απαλλοτρίωσης, με τροποποίηση του εγκεκριμένου ρυμοτομικού σχεδίου, σε συμμόρφωση προς τη δικαστική απόφαση, σε τμήμα της φερόμενης ιδιοκτησίας των Δημήτρη Καλογερόπουλου και Αγγελική Γιαννόπουλου, που βρίσκεται στα οικοδομικά τετράγωνα 479 και 480 του Δήμου Αμαρουσίου.
6. Παρήλθε άπρακτη η προθεσμία για την τήρηση της διαδικασίας τροποποίησης, σύμφωνα με τις διατάξεις του από 17-07-1923 νομοθετικού διατάγματος, άρθρα 1, 3, 7, 9 και 70, όπως ισχύουν σήμερα, οπότε η διαδικασία θα συνεχιστεί ως άπρακτη, χωρίς νέα γνωμοδότηση του αρμόδιου Συμβουλίου Πολεοδομικών Θεμάτων και Αμφισβητήσεων.
7. Η Υπηρεσία με το με αριθμό πρωτοκόλλου 247375/2015 επανεισηγήθηκε την υπόθεση στο Συμβούλιο Πολεοδομικών Θεμάτων και Αμφισβητήσεων. το οποίο με το 2ο πρακτικό, θέμα 7ο της 2ης συνεδρίασης της 05-03-2015, γνωμοδότησε ότι έχει ήδη γνωμοδοτήσει με το με αριθμό 7ο πρακτικό, θέμα 4ο,της 08-07-2014 Συνεδρίασης.
8. Στη με αριθμό 174/2015 απόφαση Δημοτικού Συμβουλίου Αμαρουσίου, 4η αναμόρφωση προϋπολογισμού Δήμου Αμαρουσίου οικονομικού έτους 2015 και συγκεκριμένα, στον ΚΑ Εξόδων 40-7111.001 Απαλλοτρίωσης οικοπέδου στο οικοδομικό τετράγωνο 480 (υπόθεση Καλογερόπουλου), εγγράφεται ποσό 100.000€, το οποίο δεν καλύπτει την αντικειμενική αξία του ακινήτου.
9. Με τη με αριθμό πρωτοκόλλου 229483/2015/2016 απόφαση της Περιφερειάρχη Αττικής, (ΑΔΑ: 7Μ837Λ7-ΣΞ5), ακυρώθηκε η 1/2015 Πράξη Προσκύρωσης και Αναλογισμού αποζημίωσης, λόγω ρυμοτομίας ιδιοκτησιών στα οικοδομικά τετράγωνα 479-480 της περιοχής Εργατικές κατοικίες του Δήμου Αμαρουσίου, (ανασύνταξη της 15/92 Πράξεως) που συντάχθηκε από τη Διεύθυνση Υπηρεσίας Δόμησης του Δήμου Αμαρουσίου.
10. Από τις διατάξεις της παρούσας απόφασης προκύπτει ότι δεν προκαλείται δαπάνη σε βάρος του κρατικού προϋπολογισμού και του προϋπολογισμού του οικείου οργανισμού τοπικής αυτοδιοίκησης.
11. Η εν λόγω άρση ρυμοτομικής απαλλοτρίωσης, με τροποποίηση του εγκεκριμένου ρυμοτομικού σχεδίου, είναι όλως εντοπισμένη, δεν ευρίσκεται επί Βασικού Οδικού Δικτύου ούτε είναι σε περιοχή ιδιαιτέρου φυσικού κάλλους ή χαρακτηρισμένη ως διατηρητέου περιβαλλοντικού ενδιαφέροντος, ή κηρυγμένου αρχαιολογικού χώρου, σύμφωνα με το άρθρο 10 του νόμου 3044/2002 (ΦΕΚ 197/Α/2002) και, σύμφωνα με το άρθρο 186 παράγραφος ΣΤ.39 του νόμου 3852/2010, αποτελεί αρμοδιότητα του Περιφερειάρχη, αποφασίζουμε:
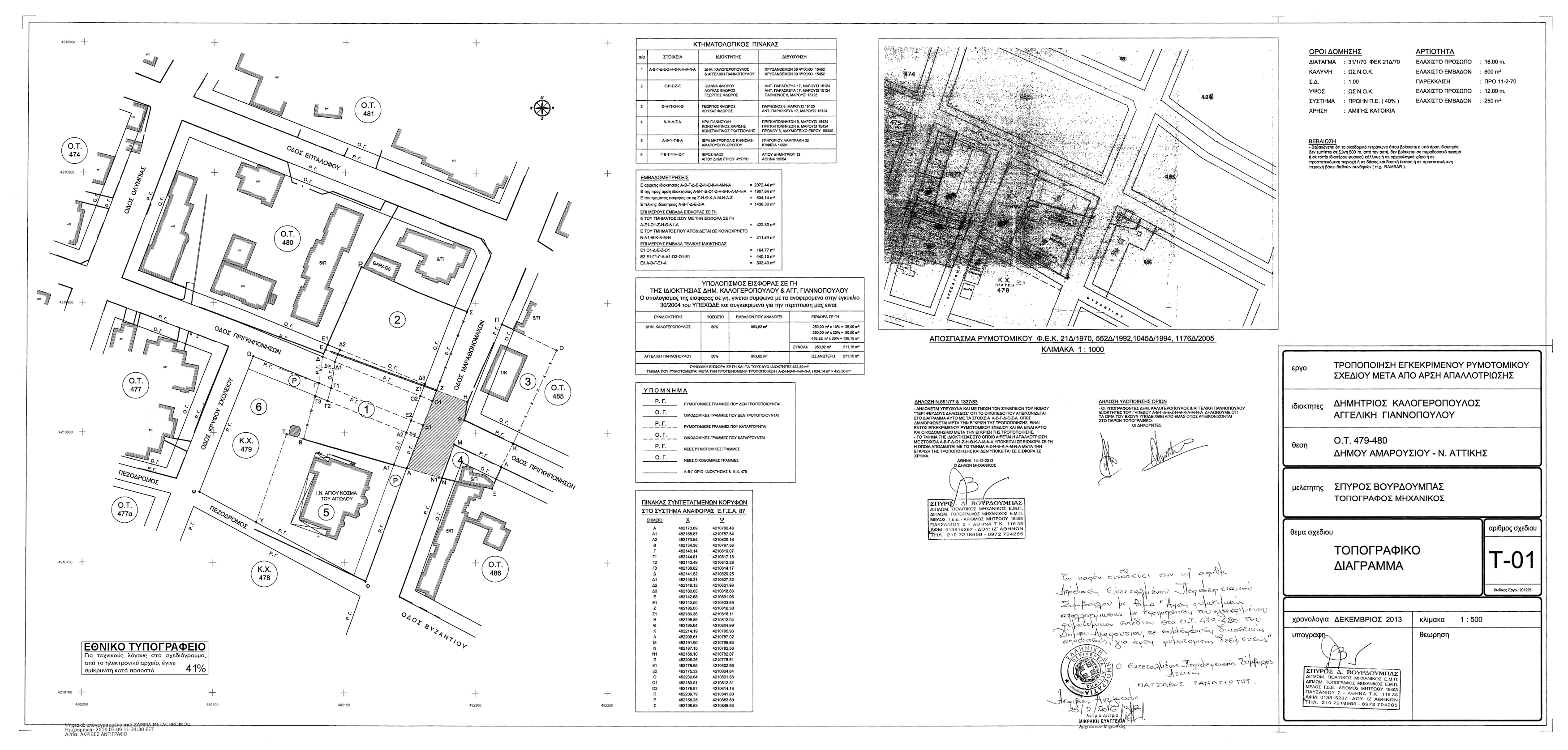
1. Την άρση της ρυμοτομικής απαλλοτρίωσης, με τροποποίηση του εγκεκριμένου ρυμοτομικού σχεδίου, σε τμήμα της φερόμενης ιδιοκτησίας Δημήτρη Καλογερόπουλου και Αγγελικής Γιαννόπουλου, που βρίσκεται στα οικοδομικά τετράγωνα 479 και 480 του Δήμου Αμαρουσίου εμβαδού Ε = 1907,64 m2 με:
Ι. Τον αποχαρακτηρισμό της έκτασης στο οικοδομικό τετράγωνο 479, με τα στοιχεία (Α1-Β-Γ3-Γ2-Α2-Α1) από ΚΧ και το χαρακτηρισμό της σε οικοδομήσιμο χώρο.
II. Τον αποχαρακτηρισμό της έκτασης στο οικοδομικό τετράγωνο 479, με τα στοιχεία (Α2-Γ2-Γ1-Ξ2-Α2) από ΚΧ-Ρ και το χαρακτηρισμό της σε οικοδομήσιμο χώρο.
III. Τον αποχαρακτηρισμό των εκτάσεων στο οικοδομικό τετράγωνο 479, με τα στοιχεία (Α-Α1-Α2-Ξ2-Ξ1-Α) και (Γ-Γ1-Γ2-Γ3-Γ) από ΚΧ -Ρ και το χαρακτηρισμό τους σε πρασιά πλάτους 5 m.
IV. Τον αποχαρακτηρισμό του τμήματος της οδού Πριγκιποννήσων, με στοιχεία (Ξ2-Γ1-Δ1-02-Ξ2) και το χαρακτηρισμό του σε οικοδομήσιμο χώρο.
V. Τον αποχαρακτηρισμό των τμημάτων της οδού Πριγκιποννήσων, με στοιχεία (Ξ1-Ξ2-02-01-Ξ1 ) και (Γ-Γ1-Δ1 -Δ-Γ) και τον χαρακτηρισμό τους σε πρασιά πλάτους 5 m.
VI. Τον αποχαρακτηρισμό της έκτασης στο οικοδομικό τετράγωνο 480, με τα στοιχεία (Δ-Ε-Ε1-Δ2-Δ3-Ζ1-02-Δ1-Δ), από πρασιά πλάτους 5 m, σε οικοδομήσιμο χώρο.
VII. Το χαρακτηρισμό των τμημάτων που συμπίπτουν με τις ήδη διανοιγμένες οδούς Μαραθωνομάχων και Πριγκιποννήσων, με τα στοιχεία (Α-Ξ1-01-Ζ-Η-Θ-Κ-Λ-ΜΝ-Ν1-Α), σε κοινόχρηστο χώρο (οδοί).
VIII. Την επιβολή πρασιάς πλάτους 5 m, στα πρόσωπα της ιδιοκτησίας, με στοιχεία (Α-Α1-Α2-Ξ2-02-Ζ1Ζ-01-Ξ1-Α) και (Γ-Δ-Ε-Ε1-Δ2-Δ1-Γ1-Γ2-Γ3-Γ).
IX. Τον καθορισμό των όρων και περιορισμών δόμησης, σύμφωνα με τους ισχύοντες στην περιοχή, όπως φαίνονται αναλυτικά στο συνημμένο στην παρούσα τοπογραφικό διάγραμμα και αντίτυπο του σε φωτοσμίκρυνση δημοσιεύεται με την παρούσα απόφαση.
2. Την παρακράτηση της απαιτούμενης εισφοράς σε γη, όπως εμφανίζεται με τα στοιχεία (Α-Ξ1-01-Ζ-Η-ΘΝ1-Α) εμβαδού Ε= 422.30 m2, σε τμήμα των ήδη διανοιγμένων οδών Μαραθωνομάχων και Πριγκιποννήσων, όπως φαίνεται στο συνημμένο στην παρούσα τοπογραφικό διάγραμμα.
3. Η ισχύς αυτής της απόφασης αρχίζει από την ημερομηνία δημοσίευσής της στην Εφημερίδα της Κυβερνήσεως.
4. Επιτρέπεται η υποβολή προσφυγής κατά της απόφασης αυτής, στον Γενικό Γραμματέα της Αποκεντρωμένης Διοίκησης Αττικής, μέχρι συστάσεως της Αυτοτελούς εποπτείας οργανισμών τοπικής αυτοδιοίκησης (Ελεγκτής Νομιμότητας) μόνο για παράβαση του Νόμου, σύμφωνα με τις διατάξεις του άρθρου 227 του νόμου 3852/2010 (ΦΕΚ 87Α'/2010) και σε προθεσμία 15 ημερών, από την δημοσίευση της στην Εφημερίδα της Κυβερνήσεως.

Η απόφαση αυτή να δημοσιευθεί στην Εφημερίδα της Κυβερνήσεως.
Αθήνα, 29-02-2016
Ο Εντεταλμένος Περιφερειακός Σύμβουλος