| Συνδεθείτε στην Υπηρεσία Νομοσκόπιο | | | | | Νέοι χρήστες | | Εάν είστε νέος χρήστης, θα πρέπει να δημιουργήσετε ένα ΔΩΡΕΑΝ λογαριασμό προκειμένου να φύγει το παράθυρο αυτό και να αποκτήσετε πλήρη πρόσβαση στην υπηρεσία Νομοσκόπιο. | | Δημιουργία νέου λογαριασμού | | |
Απόφαση 116661/4062/2015: Τροποποίηση του εγκεκριμένου ρυμοτομικού σχεδίου πόλης Ιωαννίνων, περιοχή Βρυσούλας - Μπονίλα, ειδικότερα εντός των οικοδομικών τετραγώνων 365 και 366, επί της οδού Πλουτάρχου, (ΦΕΚ 256/ΑΑΠ/2015), 22-12-2015.
Ο Περιφερειάρχης Ηπείρου
Έχοντας υπόψη:
1. Τις διατάξεις των άρθρων 152 (παράγραφοι 1, 2, 6 και 10), 154, 160, 161 (παράγραφος 1), 248, 249 και 250 του Κώδικα Βασικής Πολεοδομικής Νομοθεσίας που κυρώθηκε με το άρθρο πρώτο του από 14-07-1999 προεδρικού διατάγματος (ΦΕΚ 580/Δ/1999), όπως τα άρθρα 248, 249 και 250 τροποποιήθηκαν με τα άρθρα 5, 6 και 7 αντίστοιχα του νόμου 2831/2000 Τροποποίηση των διατάξεων του 1577/1985 Γενικός Οικοδομικός Κανονισμός και άλλες πολεοδομικές διατάξεις (ΦΕΚ 140/Α/2000).
2. Τις διατάξεις του άρθρου 31 του νόμου 4067/2012 (ΦΕΚ 79/Α/2012) Νέος Οικοδομικός Κανονισμός.
3. Τις διατάξεις των άρθρων 30 και 31 του νόμου 4030/2011 Νέος τρόπος έκδοσης αδειών δόμησης, ελέγχου κατασκευών και λοιπές διατάξεις (ΦΕΚ 249/Α/2011).
4. Τις διατάξεις του νόμου 3852/2010 για τη Νέα Αρχιτεκτονική της Αυτοδιοίκησης και της Αποκεντρωμένης Διοίκησης - Πρόγραμμα Καλλικράτης (ΦΕΚ 87/Α/2010) και συγκεκριμένα το άρθρο 186, παράγραφος ΣΤ, στοιχείο 39 αυτού.
5. Το προεδρικό διάταγμα 140/2010 (ΦΕΚ 233/Α/2010) Οργανισμός της Περιφέρειας Ηπείρου.
6. Την υπ' αριθμόν 71877/3169/1986 (ΦΕΚ 58/Δ/1987) απόφαση Υπουργού Περιβάλλοντος, Χωροταξίας και Δημοσίων Έργων περί εγκρίσεως γενικού πολεοδομικού σχεδίου (ΓΠΣ) Ιωαννίνων, όπως τροποποιήθηκε και ισχύει.
7. Την πολεοδομική μελέτη της περιοχής Βρυσούλας Δήμου Ιωαννίνων που εγκρίθηκε με το από 28-05-1987 προεδρικό διάταγμα (ΦΕΚ 635/Δ/1987), όπως αναθεωρήθηκε με την 2525/1994 απόφαση Νομάρχη Ιωαννίνων (ΦΕΚ 606/Δ/1994) τροποποιήθηκε με τη 1873/1996 όμοια (ΦΕΚ 394/Δ/1996), σε εφαρμογή και του εγκεκριμένου Γενικού Πολεοδομικού Σχεδίου Ιωαννίνων.
8. Το εγκεκριμένο Γενικό Πολεοδομικό Σχέδιο Ιωαννίνων το οποίο έχει εγκριθεί με την 71877/3169/1986 απόφαση του Υπουργού Περιβάλλοντος, Χωροταξίας και Δημοσίων Έργων (ΦΕΚ 58/Δ/1987), και η μελέτη αναθεώρησης του βρίσκεται στην Διεύθυνση Περιβάλλοντος - Χωροταξίας Αποκεντρωμένης Διοίκησης Ηπείρου-Δυτικής Μακεδονίας.
9. Τη μελέτη της πράξης εφαρμογής της περιοχής Βρυσούλας - Μπονίλα Δήμου Ιωαννίνων, με αριθμό 4/1998, η οποία κυρώθηκε με την 17318/1998 απόφαση Δημάρχου Δήμου Ιωαννιτών και μεταγράφηκε στο υποθηκοφυλακείο στον τόμο 1415 με α.α.-1
10. Την υπ' αριθμόν 420/2015 απόφαση του Δημοτικού Συμβουλίου Δήμου Ιωαννιτών με την οποία γνωμοδότησε ομόφωνα θετικά υπέρ της τροποποίησης.
11. Την υπ' αριθμόν πρωτοκόλλου 98317/3051/2015 εισήγηση της Διεύθυνσης Περιβάλλοντος και Χωρικού Σχεδιασμού Περιφέρειας Ηπείρου προς το Συμβούλιο Πολεοδομικών Θεμάτων και Αμφισβητήσεων Περιφερειακής Ενότητας Ιωαννίνων.
12. Το πρακτικό της 9ης Συνεδρίασης/16-10-2015 του Συμβουλίου Πολεοδομικών Θεμάτων και Αμφισβητήσεων Περιφερειακής Ενότητας Ιωαννίνων (θέμα 4ο/ΗΔ) σύμφωνα με το οποίο γνωμοδοτεί ομόφωνα υπέρ της τροποποίησης.
13. Το γεγονός ότι η ως άνω τροποποίηση έχει σημειακό - εντοπισμένο χαρακτήρα με μετατόπιση της οδού (διατηρούμενου του πλάτους της) χωρίς να μεταβάλλεται το ισοζύγιο των κοινοχρήστων χώρων της περιοχής και δεν εμπίπτει σε ζώνη πεντακοσίων μέτρων από την ακτή, σε παραδοσιακό οικισμό, σε τοπίο ιδιαιτέρου φυσικού κάλλους, σε αρχαιολογικό χώρο, σε δάση και δασικές εκτάσεις και σε περιοχές προστατευόμενες βάσει διεθνών συνθηκών ή βάσει των άρθρων 18 και 19 του νόμου 1650/1986 (ΦΕΚ 160/Α/1986), όπως ισχύει.
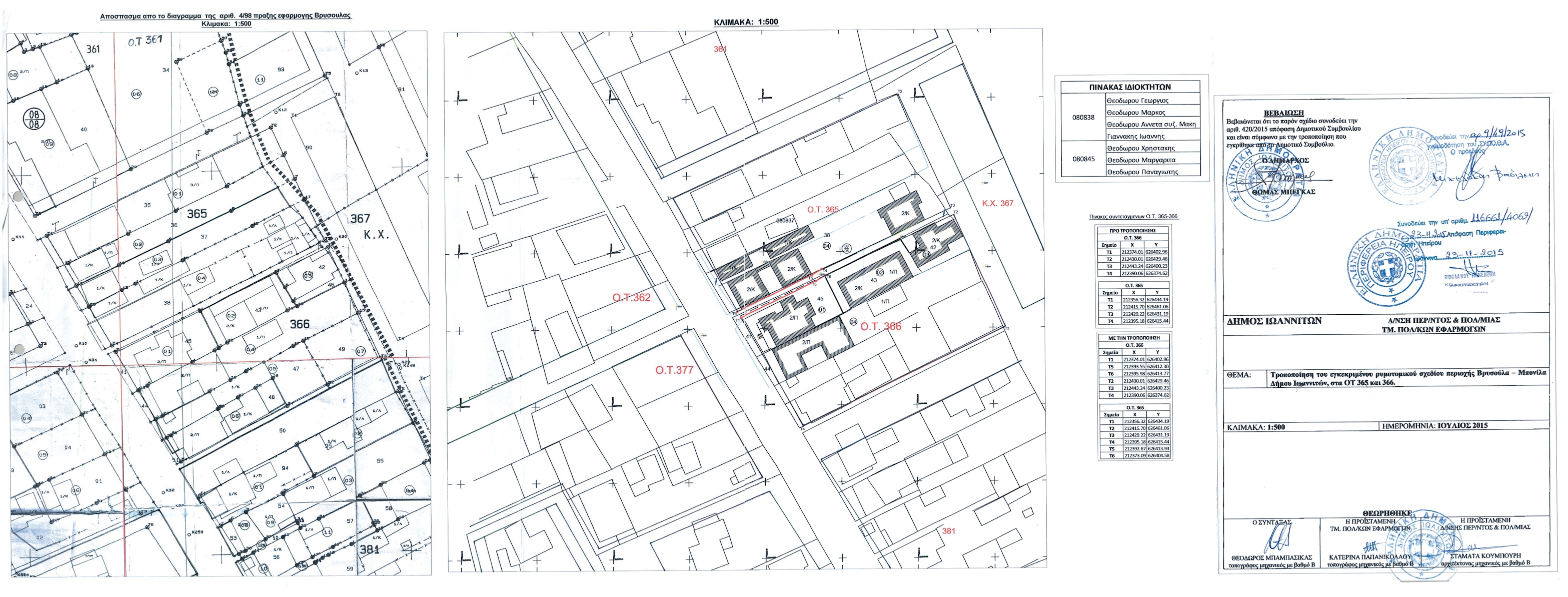
14. Το γεγονός ότι η προτεινόμενη τροποποίηση αφορά αποκλειστικά την τροποποίηση του εγκεκριμένου ρυμοτομικού σχεδίου πόλης Ιωαννίνων, περιοχή Βρυσούλας - Μπονίλα, εντός των οικοδομικών τετραγώνων - 365 και 366, επί της οδού Πλουτάρχου, με την μετατόπιση της οδού διατηρώντας το πλάτος της 1.9 m, έτσι ώστε η ρυμοτομική - οικοδομική γραμμή να συμπίπτει με την πρόσοψη των οικοδομών εντός των οικοδομικών τετραγώνων 365 και 366 οι οποίες έχουν ανεγερθεί νόμιμα με οικοδομικές άδειες και εκ παραδρομής δεν αποτυπώθηκαν στα τοπογραφικά διαγράμματα και δεν αναφέρθηκαν στα υπόλοιπα τεχνικά στοιχεία της 4/1998 Πράξης Εφαρμογής της εν λόγω περιοχής, ενώ προϋφίστανται νομίμως αυτής.
15. Η ως άνω πρόταση τροποποίησης δεν αντίκειται στις διατάξεις των εγκυκλίων 55/1988, παράγραφος 4 και 18/2003, παράγραφος VII, του Υπουργείου Περιβάλλοντος, Ενέργειας και Κλιματικής Αλλαγής, αφού αποβλέπει σε θεραπεία των προβλημάτων που έχουν προκύψει από τις πράξεις της διοίκησης, αποφασίζουμε:
Την τροποποίηση του εγκεκριμένου ρυμοτομικού σχεδίου πόλης Ιωαννίνων, περιοχή Βρυσούλας -Μπονίλα, εντός των οικοδομικών τετραγώνων-365 και 366, με την μετατόπιση της οδού Πλουτάρχου έτσι ώστε η ρυμοτομική - οικοδομική γραμμή να ταυτίζεται με την πρόσοψη των οικοδομών Κωνσταντίνου και Μάρκου Θεοδώρου στο οικοδομικό τετράγωνο-365, διατηρώντας το πλάτος της αμετάβλητο, ενώ η θέση των ρυμοτομικών - οικοδομικών γραμμών στο υπόλοιπο μήκος της οδού παραμένει ως είχε εγκριθεί. Η μετατόπιση φαίνεται και στο θεωρημένο αρμοδίως από το Δήμο Ιωαννίνων συνημμένο σχέδιο κλίμακας 1:500 με χρωματισμένες κόκκινες γραμμές.
Με τις κανονιστικές διατάξεις της απόφασης αυτής δεν προκαλείται δαπάνη σε βάρος του Δημοσίου ή του οικείου οργανισμού τοπικής αυτοδιοίκησης.

Η απόφαση αυτή να δημοσιευθεί στην Εφημερίδα της Κυβερνήσεως.
Ιωάννινα, 23-11-2015
Ο Περιφερειάρχης