| Συνδεθείτε στην Υπηρεσία Νομοσκόπιο | | | | | Νέοι χρήστες | | Εάν είστε νέος χρήστης, θα πρέπει να δημιουργήσετε ένα ΔΩΡΕΑΝ λογαριασμό προκειμένου να φύγει το παράθυρο αυτό και να αποκτήσετε πλήρη πρόσβαση στην υπηρεσία Νομοσκόπιο. | | Δημιουργία νέου λογαριασμού | | |
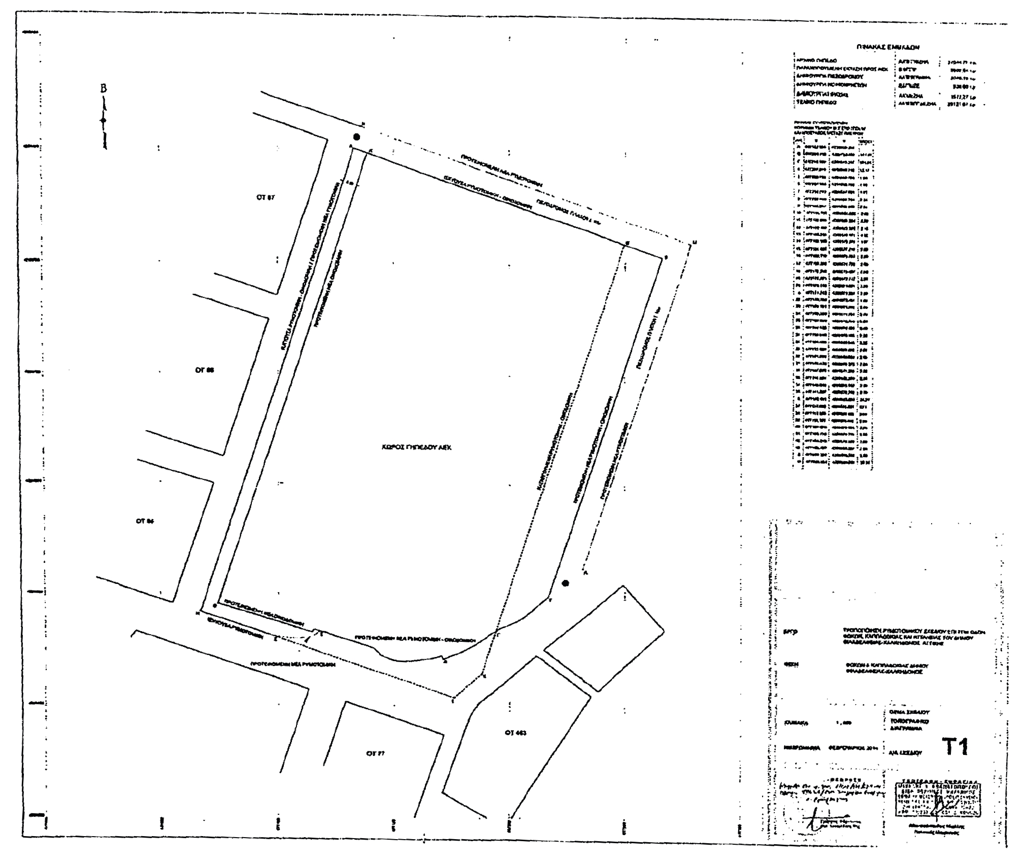
1. Έκταση συνολικού εμβαδού 29.121 m2 περίπου, η οποία βρίσκεται στο Δήμο Νέας Φιλαδέλφειας - Χαλκηδόνας Αττικής, όπως αυτή ρυθμίζεται με τις διατάξεις της παραγράφου 4 και εμφαίνεται στο σχετικό τοπογραφικό διάγραμμα του παρόντος, παραχωρείται κατά χρήση, διοίκηση και διαχείριση στο ερασιτεχνικό αθλητικό σωματείο με την επωνυμία Αθλητική Ένωση Κωνσταντινουπόλεως που ιδρύθηκε με την υπ' αριθμόν 3844/1924 απόφαση του Πρωτοδικείου Αθηνών με έδρα τη Νέα Φιλαδέλφεια Αττικής, για την εκπλήρωση του καταστατικού του σκοπού και την ανέγερση στην παραπάνω έκταση Κέντρου Αθλητισμού, Μνήμης και Πολιτισμού με την επωνυμία Αγία Σοφία - Νέα Φιλαδέλφεια.
2. Για την εκπλήρωση των σκοπών της παραχώρησης της παραγράφου 1 και των ειδικότερων υποχρεώσεων που αναλαμβάνει το ερασιτεχνικό αθλητικό σωματείο με τη σύμβαση της παραγράφου 3, το τελευταίο δύναται να αποδέχεται δωρεές ή χορηγίες από τρίτους, να εκχωρεί δικαιώματα και υποχρεώσεις σε τρίτους, να συμβάλλεται με αυτούς και εν γένει να προβαίνει σε κάθε νόμιμη ενέργεια που συντείνει στην εκπλήρωση των σκοπών της παραγράφου 1. Οι διατάξεις των παραγράφων 2, 3 και 4 του άρθρου 56 και του δεύτερου και τρίτου εδαφίου της παραγράφου 1 του άρθρου 67 του νόμου 2725/1999 (ΦΕΚ 121/Α/1999) δεν εφαρμόζονται στις αθλητικές εγκαταστάσεις του άρθρου αυτού.
3. Επίσης, για την εκπλήρωση των σκοπών της παραχώρησης και την υλοποίηση των δράσεων που αναφέρονται στους καταστατικούς σκοπούς των συμβαλλομένων, περιλαμβανομένης και της ανέγερσης, συμπλήρωσης, αναβάθμισης και επέκτασης αθλητικών εγκαταστάσεων, ο οικείος Δήμος, η οικεία Περιφέρεια, Ιδρύματα, το Δημόσιο ή άλλοι φορείς του δημόσιου τομέα της παραγράφου 6 του άρθρου 1 του νόμου [Ν] 1256/1982 δύνανται να υπογράφουν με το ερασιτεχνικό αθλητικό σωματείο ειδικές προγραμματικές συμβάσεις αθλητικής ανάπτυξης, στις οποίες ορίζεται το αντικείμενο της σύμβασης, ο σκοπός και το περιεχόμενο των μελετών, των έργων, των προγραμμάτων ή των υπηρεσιών, ο προϋπολογισμός τους, τα δικαιώματα και οι υποχρεώσεις των συμβαλλομένων, το τυχόν χρονοδιάγραμμα εκτέλεσης της σύμβασης, οι εισφορές, οι πόροι από τους οποίους θα καλυφθούν οι αναλαμβανόμενες οικονομικές υποχρεώσεις, το όργανο παρακολούθησης της εφαρμογής της και οι αρμοδιότητές του, οι ρήτρες σε βάρος του συμβαλλόμενου που παραβαίνει τους όρους της σύμβασης και η διάρκεια αυτής και κάθε θέμα σχετικό με την υλοποίηση, εφαρμογή, διαχείριση και λειτουργία του αντικειμένου της σύμβασης. Κατά τα λοιπά εφαρμόζονται οι διατάξεις του άρθρου 100 του νόμου 3852/2010 (ΦΕΚ 87/Α/2010).
4. Στην περιοχή της παραγράφου 1, αίρονται ο χαρακτηρισμός και οι δεσμεύσεις που ορίστηκαν με το από [ΒΔ] 13-03-1915 βασιλικό διάταγμα (ΦΕΚ 105/Α/1915) και την υπ' αριθμόν 108424/1934 απόφαση (ΦΕΚ 133/Β/1934) λόγω εκπλήρωσης του σκοπού για τον οποίο επιβλήθηκαν και εγκρίνεται η τροποποίηση του εγκεκριμένου ρυμοτομικού σχεδίου Νέας Φιλαδέλφειας με την επέκταση και τη μετατόπιση ρυμοτομικών και οικοδομικών γραμμών, όπως οι ρυθμίσεις αυτές φαίνονται στο από Φεβρουάριο 2014 τοπογραφικό διάγραμμα σε κλίμακα 1:500 που θεωρήθηκε από τον Προϊστάμενο Διεύθυνσης Τοπογραφικών Εφαρμογών του Υπουργείου Περιβάλλοντος Ενέργειας και Κλιματικής Αλλαγής με τίτλο Τροποποίηση Ρυμοτομικού Σχεδίου επί των οδών Φωκών, Καππαδοκίας και Αττάλειας του δήμου Φιλαδέλφειας - Χαλκηδόνας Αττική, και το οποίο αποτελεί αναπόσπαστο μέρος του παρόντος. Πέραν της περιοχής της παραγράφου 1 του παρόντος διασφαλίζεται ο δασικός χαρακτήρας του άλσους ως προς το λοιπό της έκτασης αυτού.
Στην περιοχή αυτή καθορίζονται οι ακόλουθοι όροι και περιορισμοί δόμησης και οι ακόλουθες επιτρεπόμενες χρήσεις γης:
α) Όροι και περιορισμοί δόμησης:
α)α) Ανώτατο επιτρεπόμενο ύψος κτιρίων: 27 m.
β)β) Ανώτατο επιτρεπόμενο ύψος απολήξεων κλιμακοστασίων: 2.7 m (πέραν του ανώτατο επιτρεπόμενου ύψους κτιρίων).
γ)γ) Ανώτατο επιτρεπόμενο ύψος στεγάστρων: 30 m.
δ)δ) Ανώτατο επιτρεπόμενο ύψος πυλώνων ανάρτησης στεγάστρων: 40 m και σύμφωνα με τα οριζόμενα παρακάτω στην υποπερίπτωση δ)δ της περίπτωσης β.
ε)ε) Ανώτατος επιτρεπόμενος συντελεστής δόμησης: 1,2.
στ)στ) Ανώτατο επιτρεπόμενο ποσοστό κάλυψης: 60%.
β) Επιτρεπόμενες χρήσεις γης:
α)α) Αθλητικές χρήσεις με τις βοηθητικές τους εξυπηρετήσεις (αποδυτήρια, χώροι υγιεινής, ιατρεία, σουίτες VIP, φυσικοθεραπευτήρια, γραφεία προπονητών και διαιτητών, γραφεία διοίκησης και προσωπικού, αποθήκες, συνεργεία, χώροι ελέγχου και χειρισμού των εγκαταστάσεων, χώροι TV και CCTV κ.λ.π.), συνοδευτικές χρήσεις των κυρίως αθλητικών χρήσεων με τους αντίστοιχους κλειστούς διαδρόμους (όπως χώροι μέσων μαζικής ενημέρωσης, χώροι αναψυχής και εστίασης αθλητών, προπονητών, διαιτητών, αίθουσες συσκέψεων και προβολών, γραφεία εξυπηρέτησης ομάδων, χώροι άθλησης και υγιεινής, γυμναστήριο, spa, χαμάμ, χώροι εξυπηρέτησης θεατών και επισήμων, κυλικεία, χώροι στάθμευσης αυτοκινήτων), καθώς και οι ακόλουθες συμπληρωματικές λειτουργίες με τους αντίστοιχους κλειστούς διαδρόμους: πολιτιστικές χρήσεις (όπως μουσεία), χώροι αναψυχής, εμπορικά καταστήματα (με εξαίρεση τις υπεραγορές και τα πολυκαταστήματα) και καταστήματα παροχής προσωπικών υπηρεσιών, εκθεσιακοί χώροι, εστιατόρια. Ο ανώτατος συντελεστής δόμησης των ανωτέρω επιτρεπόμενων χρήσεων για τις συμπληρωματικές λειτουργίες, δεν επιτρέπεται να υπερβαίνει το 15% του ανώτατου επιτρεπόμενου συντελεστή δόμησης.
β)β) Ο αριθμός των θέσεων στάθμευσης των αυτοκινήτων ορίζεται συνολικά στις εκατόν ογδόντα θέσεις για την περιοχή που ρυθμίζεται με το παρόν και σε διακόσιες θέσεις στάθμευσης, οι οποίες πρέπει να βρίσκονται σε ιδιόκτητο ακίνητο, που να βρίσκεται εκτός των ορίων του άλσους και να μην απέχει από τις εξυπηρετούμενες εγκαταστάσεις πλέον των χιλίων μέτρων και οι οποίες θα πρέπει να έχουν εξασφαλιστεί κατά την έκδοση της άδειας λειτουργίας των αθλητικών εγκαταστάσεων. Η προβλεπόμενη από το άρθρο 1 του νόμου 960/1979 συμβολαιογραφική δήλωση των θέσεων στάθμευσης των εγκαταστάσεων που προβλέπονται στο άρθρο αυτό, μπορεί να γίνεται για λογαριασμό του κυρίου του ακινήτου από τον παραχωρησιούχο φορέα. Συμβολαιογραφικές πράξεις που αφορούν την παραχώρηση σε κοινή χρήση τμήματος της παραπάνω έκτασης ή τη σύσταση δουλείας επί αυτής ή άλλων εμπράγματων δικαιωμάτων μπορούν επίσης να γίνονται για λογαριασμό του κυρίου του ακινήτου από τον παραχωρησιούχο φορέα ή τον έλκοντα εξ αυτού δικαιώματα.
γ)γ) Στους υπόγειους χώρους των εγκαταστάσεων, ανεξαρτήτως χρήσεων, εφαρμόζονται οι διατάξεις των παραγράφων 1.1 και 1.2 του άρθρου 11 της υπ' αριθμόν 3046/304/1989 απόφασης του Υπουργού Περιβάλλοντος, Χωροταξίας και Δημοσίων Έργων Κτιριοδομικός Κανονισμός (ΦΕΚ 59/Δ/1989). Το ύψος των υπόγειων χώρων δύναται να υπερβαίνει τα 3 m, εφαρμοζόμενης της παραγράφου 6 του άρθρου 11 του νόμου 4067/2012.
δ)δ) Για την λειτουργική ενσωμάτωση των επιτρεπόμενων χρήσεων στον αστικό ιστό, επιτρέπεται επίσης η διαμόρφωση του περιβάλλοντος χώρου και των περιμετρικών πεζοδρόμων με την πραγματοποίηση εκσκαφών έως 5 m και επιχώσεων έως 2 m, μη εφαρμοζόμενης της παραγράφου 4 του άρθρου 15 του νόμου 4067/2012 (ΦΕΚ 79/Α/2012). Το τελευταίο εδάφιο της περίπτωσης β' της παραγράφου 6 του άρθρου 17, η παράγραφος 5 του άρθρου 15, καθώς και οι διαστάσεις που ορίζονται στην υποπερίπτωση β' της περίπτωσης Β' της παραγράφου 8 του άρθρου 17 του νόμου 4067/2012 δεν έχουν εφαρμογή.
5. α. Οι περιβαλλοντικοί όροι για τη δημιουργία των εγκαταστάσεων, εγκρίνονται, σύμφωνα με τα προβλεπόμενα στο ν. 4014/2011 (Α'209), ύστερα από την υποβολή και την αξιολόγηση Μελέτης Περιβαλλοντικών Επιπτώσεων (ΜΠΕ) από την αρμόδια υπηρεσία του Υπουργείου Περιβάλλοντος, Ενέργειας και Κλιματικής Αλλαγής. Στη Μελέτη Περιβαλλοντικών Επιπτώσεων, εκτός των άλλων, προβλέπονται πρόσθετοι ειδικοί όροι περιβαλλοντικής προστασίας, καθώς και πρόσφορα και κατάλληλα αντισταθμιστικά μέτρα, τα οποία σχετίζονται ιδίως:
α) με την πύκνωση και επαύξηση των χώρων πρασίνου στο υπόλοιπο άλσος της Νέας Φιλαδέλφειας,
β) με την εντατικοποίηση της συνοχής, της συνέχειας και της λειτουργίας του άλσους, ως δασικού οικοσυστήματος,
γ) με την ενίσχυση της αντιπυρικής προστασίας του και
δ) με κάθε συναφές μέτρο που διασφαλίζει την αναγκαία αντιστάθμιση και αποκαθιστά το περιβαλλοντικό ισοζύγιο στο άλσος της Νέας Φιλαδέλφειας.
β. Οι προβλεπόμενες εγκρίσεις και άδειες για την πραγματοποίηση των αθλητικών εγκαταστάσεων στην περιοχή της παραγράφου 1, εκδίδονται πριν την αδειοδότηση και υλοποίηση των συνοδών τεχνικών και συγκοινωνιακών έργων, η ολοκλήρωση των οποίων αποτελεί προϋπόθεση για την έκδοση της άδειας λειτουργίας των αθλητικών εγκαταστάσεων. Η ολοκλήρωση των συνοδών έργων πιστοποιείται με διαπιστωτική πράξη του Υπουργού Περιβάλλοντος, Ενέργειας και Κλιματικής Αλλαγής.
6. Οι άδειες έγκρισης και δόμησης για την ανέγερση των κτιρίων και εγκαταστάσεων χορηγούνται, σύμφωνα με τα οριζόμενα στο άρθρο 1 του νόμου 3342/2005 (ΦΕΚ 131/Α/2005), όπως ισχύει, από την Διεύθυνση Οικοδομικών και Κτιριοδομικών Κανονισμών του Υπουργείου Περιβάλλοντος, Ενέργειας και Κλιματικής Αλλαγής, η οποία ασκεί τις αρμοδιότητες των άρθρων 20 και 21 του νόμου 4030/2011 (ΦΕΚ 249/Α/2011).
7. Οι διατάξεις του άρθρου 19 του νόμου 3044/2002, όπως αυτές τροποποιήθηκαν και συμπληρώθηκαν με την παράγραφο 1 του άρθρου 11 του νόμου 3207/2003, καθώς και οι διατάξεις του άρθρου 65 του νόμου 4042/2012 (ΦΕΚ 24/Α/2012) καταργούνται.
