| Συνδεθείτε στην Υπηρεσία Νομοσκόπιο | | | | | Νέοι χρήστες | | Εάν είστε νέος χρήστης, θα πρέπει να δημιουργήσετε ένα ΔΩΡΕΑΝ λογαριασμό προκειμένου να φύγει το παράθυρο αυτό και να αποκτήσετε πλήρη πρόσβαση στην υπηρεσία Νομοσκόπιο. | | Δημιουργία νέου λογαριασμού | | |
Απόφαση 343548/6931/2017: Έγκριση τροποποίησης ρυμοτομικού Σχεδίου Πόλεως Αγρινίου, στο οικοδομικό τετράγωνο 301, (ΦΕΚ 28/ΑΑΠ/2017), 14-02-2017.
Ο Περιφερειάρχης Δυτικής Ελλάδας
Έχοντας υπόψη:
1. Τις διατάξεις των άρθρων 186 και 283 του νόμου 3852/2010 (ΦΕΚ 87/Α/2010): Νέα Αρχιτεκτονική της Αυτοδιοίκησης και της Αποκεντρωμένης Διοίκησης - Πρόγραμμα Καλλικράτης.
2. Το προεδρικό διάταγμα 132/2010 (ΦΕΚ 225/Α/2010): Οργανισμός της Περιφέρειας Δυτικής Ελλάδας.
3. Το από 17-07-1923 νομοθετικό διάταγμα (ΦΕΚ 228/Α/1923), περί σχεδίων πόλεων, κωμών και συνοικισμών του Κράτους και οικοδομής αυτών.
4. Τις διατάξεις του κεφαλαίου II του από 03-04-1929 προεδρικού διατάγματος, που διατηρήθηκαν σε ισχύ με το άρθρο 31, παράγραφος 3 του νόμου 1577/1985.
5. Το νόμο 1337/1983 (ΦΕΚ 33/Α/1983), όπως τροποποιήθηκε και ισχύει.
6. Τον Κώδικα βασικής πολεοδομικής νομοθεσίας (ΦΕΚ 580/Δ/1999) και ειδικότερα τα άρθρα 152 και 154.
7. Τις διατάξεις του άρθρου 29 του νόμου 2831/2000 (ΦΕΚ 140/Α/2000), όπως αντικαταστάθηκαν με το άρθρο 10 του νόμου 3044/2002 (ΦΕΚ 197/Α/2002).
8. Το νόμο 4030/2011 (ΦΕΚ 249/Α/2011), άρθρα 30 έως 32, όπως τροποποιήθηκε και ισχύει.
9. Το νόμο 4067/2012 Νέος Οικοδομικός Κανονισμός (ΦΕΚ 79/Α/2012) και ειδικότερα τα άρθρα 31 και 32 αυτού, όπως τροποποιήθηκε και ισχύει.
10. Το νόμο 4269/2014 (ΦΕΚ 142/Α/2014) Χωροταξική και πολεοδομική μεταρρύθμιση - Βιώσιμη ανάπτυξη.
11. Το νόμο 4315/2014 (ΦΕΚ 269/Α/2014) Πράξεις εισφοράς σε γη και χρήμα - Ρυμοτομικές απαλλοτριώσεις και άλλες διατάξεις.
12. Τις με αριθμό 1/1961, 8/1975, 43/1980 και 55/1988 Εγκυκλίους σχετικές με θέματα τροποποιήσεως ρυμοτομικών σχεδίων.
13. Τη με αριθμό 10/2012 εγκύκλιο του Υπουργείου Περιβάλλοντος, Ενέργειας και Κλιματικής Αλλαγής.
14. Τη με αριθμό 38525/06-08-2014 εγκύκλιο του Υπουργείου Περιβάλλοντος, Ενέργειας και Κλιματικής Αλλαγής.
15. Το εγκεκριμένο ρυμοτομικό σχέδιο που εγκρίθηκε με την 3113/2004 απόφαση του Νομάρχη Αιτωλοακαρνανίας (ΦΕΚ 1059/Δ/2004).
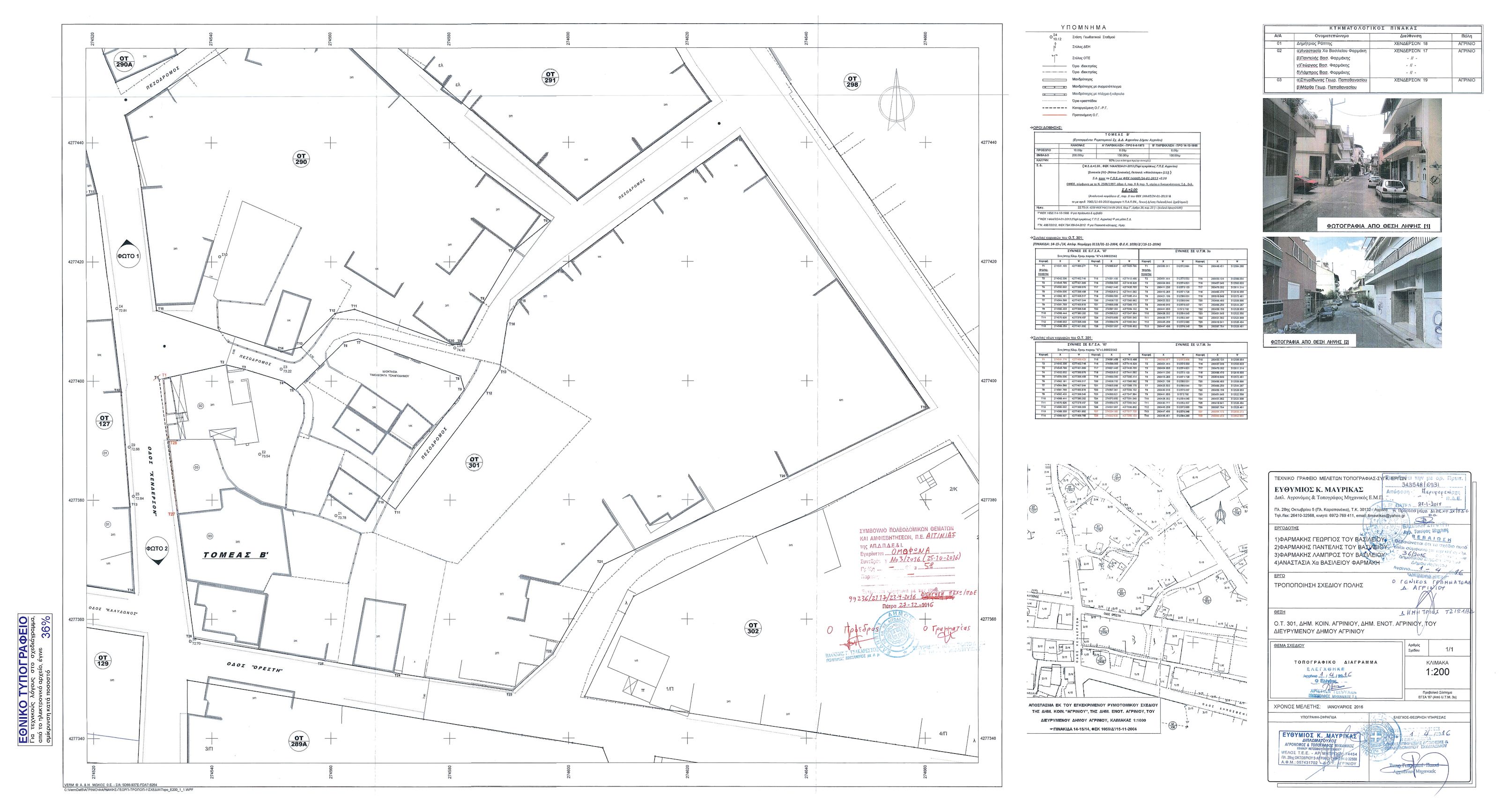
16. Τη με αριθμό 36/08-02-2016 απόφαση Δημοτικού Συμβουλίου Δήμου Αγρινίου, με την οποία αποφασίστηκε κατά πλειοψηφία η έγκριση της τροποποίησης του ρυμοτομικού Σχεδίου Πόλεως Αγρινίου, που αφορά τη μετατόπιση τμήματος της δυτικής οικοδομικής γραμμής στα όρια της ιδιοκτησίας των αδελφών Φαρμάκη για τη διαπλάτυνση της οδού μεταξύ των οικοδομικών τετραγώνων 301- 290 για την ασφαλή κυκλοφορία οχημάτων και πεζών δεδομένου ότι η οδός Χέδερσον λόγω την πυκνοκατοίκησης της περιοχής περιλαμβάνει μεγάλο φόρτο κυκλοφορίας, όπως τα ανωτέρω απεικονίζονται στο από Ιανουάριο 2016 τοπογραφικό διάγραμμα πρότασης τροποποίησης του Διπλωματούχου Αγρονόμου Τοπογράφου Μηχανικού Μαυρίκα Ευθυμίου.
17. Τη με αριθμό 4107/2015/08-04-2016 έγγραφο του Δήμου Αγρινίου, με το οποίο μας διαβιβάστηκε ο φάκελος της υπόθεσης.
18. Η με αριθμό 109982/2337/26-04-2016 αίτηση επίσπευσης της υπόθεσης του Γεωργίου Φαρμάκη.
19. Τη με αριθμό 99236/217/23-04-2016 εισήγησή μας προς το Συμβούλιο Πολεοδομικών Θεμάτων και Αμφισβητήσεων Αιτωλοακαρνανίας σχετικά με την έγκριση της αιτούμενης τροποποίησης Σχεδίου Πόλεως Αγρινίου, στο οικοδομικό τετράγωνο 301.
20. Το με αριθμό 55/74109/27-12-2016 έγγραφο του Συμβουλίου Πολεοδομικών Θεμάτων και Αμφισβητήσεων Περιφερειακής Ενότητας Αιτωλοακαρνανίας, με το οποίο μας διαβιβάστηκε απόσπασμα πρακτικού της από 25-10-2016 συνεδρίασής του με την ομόφωνη απόφασή του για αποδοχή της εισήγησης της Διεύθυνσης Περιβάλλοντος και Χωρικού Σχεδιασμού Περιφέρειας Δυτικής Ελλάδας διότι η ζητούμενη τροποποίηση είναι σημειακή και ταυτίζεται με τα όρια της ιδιοκτησίας των αδερφών Φαρμάκη στα σημεία Τ27, Τ28, Τ1' σημειούμενα με ερυθρά γραμμή (οικοδομική) με συντεταγμένες ΕΓΣΑ 1987 όπως αυτές αποτυπώνονται στο τοπογραφικό διάγραμμα του διπλωματούχου τοπογράφου μηχανικού Ευθυμίου Μαυρίκα κλίμακας 1:200, το οποίο συνοδεύει την υπ' αριθμόν 36/2016 απόφαση του Δημοτικού Συμβουλίου Αγρινίου.
21. Το γεγονός ότι με την προτεινόμενη τροποποίηση του ρυμοτομικού σχεδίου δεν προκαλείται δαπάνη σε βάρος του κρατικού προϋπολογισμού και του προϋπολογισμού του Δήμου Αγρινίου, αποφασίζουμε:
Την έγκριση της τροποποίησης του ρυμοτομικού σχεδίου πόλεως Αγρινίου στο οικοδομικό τετράγωνο 301, με τη μετατόπιση της δυτικής οικοδομικής γραμμής στα όρια της ιδιοκτησίας των αδελφών Φαρμάκη, για την διαπλάτυνση, την ευθυγράμμιση και κατά συνέπεια την ομαλή συναρμογή της οδού μεταξύ του οικοδομικού τετραγώνου 301-Ο.Τ. 290 και τη διασφάλιση της ασφαλούς κυκλοφορίας οχημάτων και πεζών, όπως ακριβώς απεικονίζεται στο από Ιανουάριο 2016 συνημμένο τοπογραφικό διάγραμμα τροποποίησης σχεδίου πόλης του Διπλωματούχου Αγρονόμου Τοπογράφου Μηχανικού Ευθυμίου Μαυρίκα, θεωρημένο από το Συμβούλιο Πολεοδομικών Θεμάτων και Αμφισβητήσεων Περιφερειακής Ενότητας Αιτωλοακαρνανίας στις 27-12-2016, το οποίο αποτελεί αναπόσπαστο τμήμα αυτής της απόφασης .
Η ισχύς της απόφασης αυτής αρχίζει από την ημερομηνία δημοσίευσής της στην Εφημερίδα της Κυβερνήσεως.
Κατά της απόφασης αυτής επιτρέπεται η υποβολή προσφυγής ενώπιον του Γενικού Γραμματέα της οικείας Αποκεντρωμένης Διοίκησης Πελοποννήσου, Δυτικής Ελλάδας και Ιονίου, μόνο για παράβαση νόμου μέσα σε προθεσμία 15 ημερών από τη δημοσίευσή της στην Εφημερίδα της Κυβερνήσεως (άρθρο 227.1Α του νόμου 3852/2010 (ΦΕΚ 87/Α/2010)).

Η απόφαση αυτή, με το συνοδευτικό της διάγραμμα, να δημοσιευθούν στην Εφημερίδα της Κυβερνήσεως.
Πάτρα, 27-01-2017
Ο Περιφερειάρχης