| Συνδεθείτε στην Υπηρεσία Νομοσκόπιο | | | | | Νέοι χρήστες | | Εάν είστε νέος χρήστης, θα πρέπει να δημιουργήσετε ένα ΔΩΡΕΑΝ λογαριασμό προκειμένου να φύγει το παράθυρο αυτό και να αποκτήσετε πλήρη πρόσβαση στην υπηρεσία Νομοσκόπιο. | | Δημιουργία νέου λογαριασμού | | |
Απόφαση 197535/3665/2017: Έγκριση τροποποίησης ρυμοτομικού Σχεδίου Πόλεως Πατρών, στο οικοδομικό τετράγωνο/ΚΧ 1257 και συγκεκριμένα στην οδό Κουντουριώτη, μεταξύ των οικοδομικών τετραγώνων 1257 και 1257Α, στα Ζαρουχλέικα, σε συμμόρφωση στην υπ' αριθμόν 1196/2012 απόφαση Διοικητικού Πρωτοδικείου Πατρών, στη συνιδιοκτησία των Δήμητρας και Μαργαρίτας Πετροπούλου, (ΦΕΚ 240/ΑΑΠ/2017), 16-10-2017.
Ο Αντιπεριφερειάρχης Ενέργειας και Περιβάλλοντος Δυτικής Ελλάδας
Έχοντας υπόψη:
1. Τις διατάξεις των άρθρων 94, 186 και 283 του νόμου 3852/2010 (ΦΕΚ 87/Α/2010): Νέα Αρχιτεκτονική της Αυτοδιοίκησης και της Αποκεντρωμένης Διοίκησης - Πρόγραμμα Καλλικράτης.
2. Τη με αριθμό 296694/5007/2014 απόφαση του Περιφερειάρχη Δυτικής Ελλάδας (ΦΕΚ 3081/Β/2014) περί μεταβίβασης αρμοδιοτήτων στους Αντιπεριφερειάρχες.
3. Το προεδρικό διάταγμα 132/2010 (ΦΕΚ 225/Α/2010) Οργανισμός της Περιφέρειας Δυτικής Ελλάδας και ειδικότερα το άρθρο 5, παράγραφος 3)α, όπως τροποποιήθηκε και ισχύει με την υπ' αριθμόν 248595/2016 (ΦΕΚ 4309/Β/2016) απόφαση του Γενικού Γραμματέα Αποκεντρωμένης Διοίκησης Πελοποννήσου, Δυτικής Ελλάδας και Ιονίου Τροποποίηση του Οργανισμού Εσωτερικής Υπηρεσίας της Περιφέρειας Δυτικής Ελλάδας.
4. Την υπ' αριθμόν 55961/643/2017 απόφαση του Περιφερειάρχη Δυτικής Ελλάδας (ΦΕΚ 111/ΥΟΔΔ/2017) Ορισμός Αντιπεριφερειαρχών της Περιφέρειας Δυτικής Ελλάδας.
5. Την υπ' αριθμόν 69923/876/2017 απόφαση του Περιφερειάρχη Δυτικής Ελλάδας (ΦΕΚ 1018/Β/2017) Μεταβίβαση αρμοδιοτήτων στους Αντιπεριφερειάρχες που ορίστηκαν από τον Περιφερειάρχη Δυτικής Ελλάδας και σε περιφερειακούς συμβούλους Δυτικής Ελλάδας.
6. Το από 17-07-1923 νομοθετικό διάταγμα (ΦΕΚ 228/Α/1923) Περί σχεδίων πόλεων, κωμών και συνοικισμών του Κράτους και οικοδομής αυτών.
7. Τις διατάξεις του κεφαλαίου II του από 03-04-1929 προεδρικού διατάγματος, που διατηρήθηκαν σε ισχύ με το άρθρο 31, παράγραφος 3 του νόμου 1577/1985 Γενικός Οικοδομικός Κανονισμός.
8. Το νόμο 1337/1983 (ΦΕΚ 33/Α/1983), όπως τροποποιήθηκε και ισχύει.
9. Τον Κώδικα βασικής πολεοδομικής νομοθεσίας (ΦΕΚ 580/Δ/1999) και ειδικότερα τα άρθρα 152 και 154.
10. Τις διατάξεις του άρθρου 29 του νόμου 2831/2000 (ΦΕΚ 140/Α/2000), όπως αντικαταστάθηκαν με το άρθρο 10 του νόμου 3044/2002 (ΦΕΚ 197/Α/2002).
11. Το νόμο 3068/2002 (ΦΕΚ 274/Α/2002), περί Συμμόρφωσης της Διοίκησης προς τις δικαστικές αποφάσεις, κ.λ.π..
12. Το νόμο 4030/2011 (ΦΕΚ 249/Α/2011), άρθρα 30 έως 32, όπως τροποποιήθηκε και ισχύει.
13. Το νόμο 4067/2012 Νέος Οικοδομικός Κανονισμός (ΦΕΚ 79/Α/2012) διόρθωση σφάλματος (ΦΕΚ 99/Α/2012) και ειδικότερα τα άρθρα 31 και 32 αντίστοιχα περί Ρύθμισης πολεοδομικών θεμάτων και Διαδικασίας τροποποίησης εγκεκριμένων ρυμοτομικών σχεδίων μετά από άρση ρυμοτομικής απαλλοτρίωσης ή δέσμευσης, όπως τροποποιήθηκε και ισχύει σήμερα, καθώς και το άρθρο 41 αυτού.
14. Το νόμο 4269/2014 (ΦΕΚ 142/Α/2014) Χωροταξική και πολεοδομική μεταρρύθμιση - Βιώσιμη ανάπτυξη.
15. Το νόμο 4280/2014 (ΦΕΚ 159/Α/2014), άρθρο 62 (Τροποποίηση των άρθρων 31 και 32 του Νέου Οικοδομικού Κανονισμού)
16. Το νόμο 4315/2014 (ΦΕΚ 269/Α/2014) Πράξεις εισφοράς σε γη και χρήμα - Ρυμοτομικές απαλλοτριώσεις και άλλες διατάξεις.
17. Τις με αριθμό 1/1961, 8/1975, 43/1980, 55/1988 και 47/2004 Εγκυκλίους σχετικές με θέματα τροποποιήσεως ρυμοτομικών σχεδίων πόλεων.
18. Τη με αριθμό 10/2012 εγκύκλιο του Υπουργείου Περιβάλλοντος, Ενέργειας και Κλιματικής Αλλαγής, τη σχετική με τις αρμοδιότητες φορέων μετά το πρόγραμμα Καλλικράτης.
19. Τη με αριθμό 38525/2014 εγκύκλιο του Υπουργείου Περιβάλλοντος, Ενέργειας και Κλιματικής Αλλαγής, τη σχετική με τις μεταβατικές διατάξεις του νόμου 4269/2014.
20. Τη με αριθμό 52907/2009 απόφαση Υπουργείου Περιβάλλοντος, Ενέργειας και Κλιματικής Αλλαγής, σχετική με ειδικές ρυθμίσεις για την εξυπηρέτηση ατόμων με αναπηρία (ΦΕΚ 2621/Β/2009).
21. Το Γενικό Πολεοδομικό Σχέδιο της Δημοτικής Ενότητας Πατρέων, Δήμου Πατρέων, Νομού Αχαΐας (ΦΕΚ 358/ΑΑΠ/2011).
22. Την υπ' αριθμόν Χ7328/1988 (ΦΕΚ 693/Δ/1988) απόφαση Νομάρχη Αχαΐας, περί Έγκρισης Πολεοδομικής Μελέτης Αναθεώρησης (τροποποίησης) του εγκεκριμένου σχεδίου και των όρων και περιορισμών δόμησης των γειτονιών αριθμός 9 (Ζαρουχλέικα), 50 (Άι Γιάννης Πράτσικας), 51 (περιοχή Βίλλας Λαδόπουλου) και 52 (Ψάχου) του Γενικού Πολεοδομικού Πάτρας.
23. Την υπ' αριθμόν Χ395/993 (ΦΕΚ 141/Δ/1993) απόφαση Νομάρχη Αχαΐας, περί Ανάκλησης - ακύρωσης της υπ' αριθμόν Χ7328/1988 (ΦΕΚ 693/Δ/1988) απόφασης Νομάρχη Αχαΐας Έγκριση Πολεοδομικής Μελέτης Αναθεώρησης (τροποποίησης) του εγκεκριμένου σχεδίου και των όρων και περιορισμών δόμησης των γειτονιών αριθμός 9 (Ζαρουχλέικα), 50 (Άι Γιάννης Πράτσικας), 51 (περιοχή Βίλλας Λαδόπουλου) και 52 (Ψάχου) του Γενικού Πολεοδομικού Πάτρας.
24. Την υπ' αριθμόν 1196/2012 απόφαση του Διοικητικού Πρωτοδικείου Πάτρας, περί άρσης επιβληθείσας απαλλοτρίωσης σε ακίνητο στο οικοδομικό τετράγωνο / ΚΧ 1257 στην περιοχή Ζαρουχλέικα του Δήμου Πατρέων.
25. Την υπ' αριθμόν 55995/2013 απόφαση Δημάρχου Πατρέων, περί εξουσιοδότησης προϊσταμένων Διευθύνσεων και Τμημάτων για την υπογραφή εγγράφων, βεβαιώσεων, κ.λ.π.
26. Την από 24-04-2014 βεβαίωση του αναπληρωτή Διευθυντή Πολεοδομικού - Κυκλοφοριακού Σχεδιασμού και Δόμησης του Δήμου Πατρέων, με την οποία βεβαιώνεται ότι με την προτεινόμενη τροποποίηση κανένα κτήριο δεν θίγεται και κανένα οικόπεδο άρτιο δεν καθίσταται μη άρτιο.
27. Την από 24-04-2014 Βεβαίωση του Διευθυντή Πολεοδομικού - Κυκλοφοριακού Σχεδιασμού και Δόμησης του Δήμου Πατρέων περί μη υποβολής ενστάσεων μετά την εκ νέου τήρηση της διαδικασίας ανάρτησης και ατομικής ειδοποίησης της πρότασης τροποποίησης του ρυμοτομικού σχεδίου.
28. Την υπ' αριθμόν 681/03-12-2014 απόφαση της Οικονομικής Επιτροπής Δήμου Πατρέων.
29. Τη με αριθμό πρωτοκόλλου 661/02-12-2013 απόφαση Δημοτικού Συμβουλίου Πατρέων, με την οποία αποφασίστηκε, κατά πλειοψηφία, η έγκριση της τροποποίησης του ρυμοτομικού Σχεδίου Πόλεως σε προβλεπόμενο κοινόχρηστο χώρο πλατείας στο οικοδομικό τετράγωνο/ΚΧ 1257 και σε τμήμα της προβλεπόμενης οδού Κουντουριώτη, μετά την υπ' αριθμόν 1196/2012 απόφαση του Διοικητικού Πρωτοδικείου Πάτρας, περί άρσης απαλλοτρίωσης συνιδιοκτησίας των Μαργαρίτας και Δήμητρας Πετροπούλου, που βρίσκεται στην ανωτέρω περιοχή και συγκεκριμένα αποφάσισε:
| • | Την κατ' αρχήν έγκριση, της προτεινόμενης τροποποίησης του ρυμοτομικού σχεδίου, σε προβλεπόμενα τμήματα κοινοχρήστων χώρων, πλατείας και πεζοδρόμου στο οικοδομικό τετράγωνο / ΚΧ 1257 και στην οδό Κουντουριώτη, μεταξύ των οικοδομικών τετραγώνων / ΚΧ 1257 και 1257Α στα Ζαρουχλέικα, μετά την άρση της απαλλοτρίωσης - βάσει της ανωτέρω υπ' αριθμόν 1196/2012 απόφασης Διοικητικού Πρωτοδικείου Πατρών - που αφορά στη συνιδιοκτησία των Μαργαρίτας και Δήμητρας Πετροπούλου, αρχικού εμβαδού Ε=174,86 m2, με: |
i. χαρακτηρισμό τμημάτων αυτής της συνιδιοκτησίας τους σε κοινόχρηστους χώρους δρόμο - πεζόδρομο, εμβαδού 16,70 m2,
ii. χαρακτηρισμό του εναπομένοντος τμήματος της συνιδιοκτησίας τους, εμβαδού 156,98 m2, σε οικοδομήσιμο χώρο,
iii. αποζημίωση λόγω ρυμοτομίας τμήματος της υπόψη συνιδιοκτησίας, εμβαδού 1,18 m2, προκειμένου να διατηρηθεί σταθερό το πλάτος της οδού Μενελάου στα 8 m.
iv. καθορισμό όρων αρτιότητας και δόμησης και χρήσεις γης, ως αυτοί ισχύουν για τον τομέα στον οποίο εμπίπτει η συνιδιοκτησία και συγκεκριμένα για το οικοδομικό τετράγωνο 1257Α,
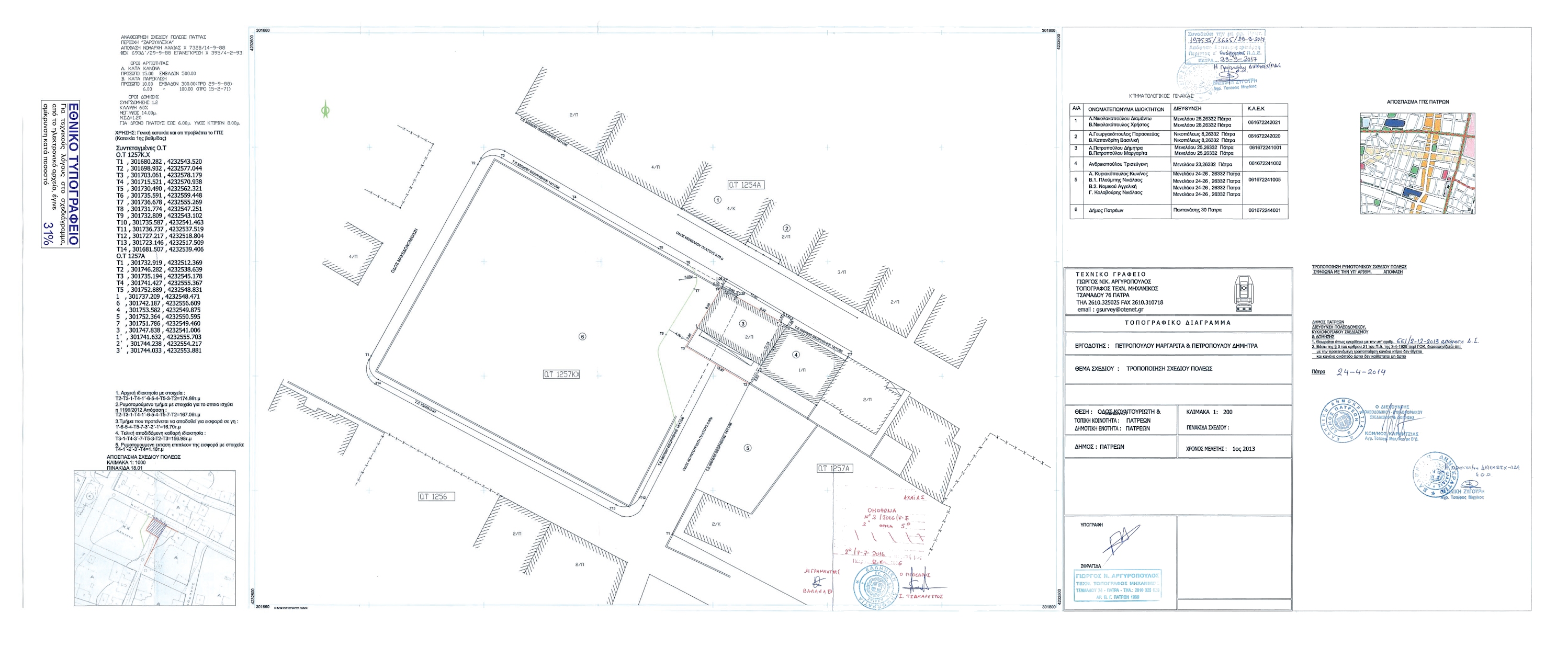
v. προσδιορισμό της θέσης ρυμοτομούμενου εδαφικού τμήματος της συνιδιοκτησίας, εμβαδού Ε=16,70 m2, το οποίο ταυτίζεται και αποτελεί και την υποχρεωτικά οφειλόμενη εισφορά σε γη της υπόψη συνιδιοκτησίας κατ' εφαρμογή της παραγράφου 5 του άρθρου 11 του νόμου 3212/2003 -υπολογιζόμενης κατά το άρθρο 20 του νόμου 2508/1997 και το άρθρο 8 του νόμου 1337/1983, όπως συγκεκριμένα τα ανωτέρω (πρόταση τροποποίησης) φαίνονται στο από Ιανουάριο 2013 συνοδευτικό διάγραμμα κλίμακας 1:200, που συντάχθηκε από τον Τεχνολόγο Τοπογράφο Μηχανικό Γεώργιο Αργυρόπουλο.
| • | Την έγκριση δέσμευσης της απαιτούμενης δαπάνης αποζημίωσης, σύμφωνα με την παράγραφο 6 του άρθρου 11 του νόμου 2882/2001 που επιβάλει την πρόβλεψη - εξασφάλιση του απαιτούμενου ποσού για την επιπλέον της εισφοράς σε γη δεσμευόμενη έκταση, εν προκειμένω τμήματος της ανωτέρω συνιδιοκτησίας εμβαδού 1,18 m2, η οποία, με τιμή μονάδος αποζημίωσης αυτή του αντικειμενικού προσδιορισμού που ισχύει σήμερα στην περιοχή (211,86 €/m2) ανέρχεται στο ποσό των (1,18 m2 x 211,86 €/m2=) 249,99€, που θα εκταμιευθεί από τον κωδικό αριθμό 40711100013 του προϋπολογισμού δαπανών του Δήμου Πατρέων έτους 2013. |
30. Την υπ' αριθμόν 281/10-06-2015 απόφαση Δημοτικού Συμβουλίου Πάτρας, σχετικά με τη συνέχιση της εφαρμογής των προϊσχυουσών χρήσεων γης, στην υπόψη περιοχή.
31. Το με αριθμό πρωτοκόλλου 59139/Π2387/24-04-2014 έγγραφο του Δήμου Πατρέων, με το οποίο διαβιβάστηκε ο φάκελος της υπόθεσης.
32. Τις από 28-01-2013 και 03-04-2015 αιτήσεις της Μαργαρίτας Πετροπούλου, προς το Δήμο Πατρέων (υπ' αριθμόν πρωτοκόλλου 15696/13) και την Περιφέρεια Δυτικής Ελλάδος (αριθμός πρωτοκόλλου 93912/1779/15), αντίστοιχα.
33. Το υπ' αριθμόν 93912/1779/15-07-2015 έγγραφο της Διεύθυνσης Περιβάλλοντος και Χωρικού Σχεδιασμού - Περιφέρειας Δυτικής Ελλάδας προς το Δήμο Πατρέων, κ.λ.π. για υποβολή συμπληρωματικών στοιχείων.
34. Την από 23-07-2015 αίτηση του Χαράλαμπου Πελέκη (συζύγου της Μαργαρίτας Πετροπούλου) προς την Διεύθυνση Περιβάλλοντος και Χωρικού Σχεδιασμού - Περιφέρειας Δυτικής Ελλάδας, με την οποία επισυνάφθηκαν (5) φωτογραφίες του ακινήτου επί της οδού Μενελάου 25.
35. Το με αριθμό πρωτοκόλλου 90956/Π5267/28-07-2015 έγγραφο του Δήμου Πατρέων, διαβιβαστικό συμπληρωματικών στοιχείων που αφορούν στην υπόθεση.
36. Τη με αριθμό πρωτοκόλλου 206630/4072/15-09-2016 εισήγηση προς το Συμβούλιο Πολεοδομικών Θεμάτων και Αμφισβητήσεων. Αχαΐας, σχετικά με την έγκριση της αιτούμενης τροποποίησης Σχεδίου Πόλεως Πατρών, στο οικοδομικό τετράγωνο / ΚΧ 1257 και στην οδό (πεζόδρομο) Κουντουριώτη, μεταξύ των οικοδομικών τετραγώνων / ΚΧ 1257 και 1257Α στα Ζαρουχλέικα, με παρατηρήσεις και διορθώσεις -συμπληρώσεις επί της προτεινόμενης από το Δήμο Πατρέων τροποποίησης του σχεδίου πόλης.
37. Το με αριθμό πρωτοκόλλου 124/118039/ΤΤ/15-09-2016 έγγραφο του Συμβουλίου Πολεοδομικών Θεμάτων και Αμφισβητήσεων Περιφερειακής Ενότητας Αχαΐας, με το οποίο διαβιβάστηκε Απόσπασμα Πρακτικού της από 07-07-2016 συνεδρίασης του (No 2) και 7ο συμβούλιο μετά από διαλογική συζήτηση αποφάσισε ομόφωνα θετικά σύμφωνα με την πρόταση του Δήμου Πατρέων.
38. Το γεγονός ότι με την προτεινόμενη τροποποίηση του ρυμοτομικού σχεδίου, δεν προκαλείται δαπάνη σε βάρος του κρατικού προϋπολογισμού.
39. Το με αριθμό πρωτοκόλλου 81539/Π7235/23.6.2017 έγγραφο του Δήμου Πατρέων, διαβιβαστικό της υπ' αριθμόν 436/19-06-2017 απόφασης Οικονομικής Επιτροπής Δήμου Πατρέων, η οποία αφορά στην ψήφιση πίστωσης ποσού 249,99€ σε βάρος του Κ.Α.40-7111.00012 (ΣΑΤΑ) των εξόδων προϋπολογισμού του Δήμου Πατρέων οικονομικού έτους 2017, με αριθμό Πρότασης Ανάληψης Υποχρέωσης Β980/09-06-2017, για την αποζημίωση ρυμοτομούμενου εδαφικού τμήματος, συνιδιοκτησίας των κ.κ. Μαργαρίτας και Δήμητρας Πετροπούλου, στο οικοδομικό τετράγωνο / ΚΧ 1257, αποφασίζουμε:
Την έγκριση της τροποποίησης του ρυμοτομικού σχεδίου πόλεως Πατρών σε προβλεπόμενο κοινόχρηστο χώρο πλατείας στο οικοδομικό τετράγωνο / ΚΧ 1257 και σε τμήμα της προβλεπόμενης οδού-πεζόδρομου Κουντουριώτη, σε συμμόρφωση στην υπ' αριθμόν 1196/2012 απόφαση του Διοικητικού Πρωτοδικείου Πάτρας, περί άρσης απαλλοτρίωσης της συνιδιοκτησίας των Μαργαρίτας και Δήμητρας Πετροπούλου, που βρίσκεται στην ανωτέρω περιοχή, αρχικού εμβαδού Ε=174,86 m2, με:
i. χαρακτηρισμό τμημάτων αυτής της συνιδιοκτησίας τους σε κοινόχρηστους χώρους δρόμο - πεζόδρομο, εμβαδού 16,70 m2,
ii. χαρακτηρισμό του εναπομένοντος τμήματος της συνιδιοκτησίας τους, εμβαδού 156,98 m2, σε οικοδομήσιμο χώρο,
iii. αποζημίωση λόγω ρυμοτομίας τμήματος της υπόψη συνιδιοκτησίας, εμβαδού 1,18 m2, προκειμένου να διατηρηθεί σταθερό το πλάτος της οδού Μενελάου στα 8 m.
iv. καθορισμό όρων αρτιότητας και δόμησης και χρήσεις γης, ως αυτοί ισχύουν για τον τομέα στον οποίο εμπίπτει η συνιδιοκτησία και συγκεκριμένα για το οικοδομικό τετράγωνο 1257Α,
v. προσδιορισμό της θέσης ρυμοτομούμενου εδαφικού τμήματος της συνιδιοκτησίας, εμβαδού Ε=16,70 m2, το οποίο ταυτίζεται και αποτελεί και την υποχρεωτικά οφειλόμενη εισφορά σε γη της υπόψη συνιδιοκτησίας κατ' εφαρμογή της παραγράφου 5 του άρθρου 11 του νόμου 3212/2003 -υπολογιζόμενης κατά το άρθρο 20 του νόμου 2508/1997 και το άρθρο 8 του νόμου 1337/1983, κι όπως συγκεκριμένα τα ανωτέρω φαίνονται στο από Ιανουάριο 2013 συνοδευτικό διάγραμμα κλίμακας 1:200, που συντάχθηκε από τον Τεχνολόγο Τοπογράφο Μηχανικό Γεώργιο Αργυρόπουλο, συμπληρώθηκε και θεωρήθηκε από τη Διεύθυνση Πολεοδομικού - Κυκλοφοριακού Σχεδιασμού και Δόμησης του Δήμου Πατρέων, και εγκρίθηκε ομόφωνα από το Συμβούλιο Πολεοδομικών Θεμάτων και Αμφισβητήσεων Περιφερειακής Ενότητας Αχαΐας, στις 07-09-2016.
Η ισχύς της απόφασης αυτής αρχίζει από την ημερομηνία δημοσίευσής της στην Εφημερίδα της Κυβερνήσεως.
Κατά της απόφασης αυτής επιτρέπεται η υποβολή προσφυγής ενώπιον του Γενικού Γραμματέα της οικείας Αποκεντρωμένης Διοίκησης Πελοποννήσου, Δυτικής Ελλάδας και Ιονίου, μόνο για παράβαση νόμου μέσα σε προθεσμία 15 ημερών από τη δημοσίευσή της στην Εφημερίδα της Κυβερνήσεως (άρθρο 227.1Α του νόμου 3852/2010 (ΦΕΚ 87/Α/2010)).

Η απόφαση αυτή με το συνοδευτικό της διάγραμμα να δημοσιευθεί στην Εφημερίδα της Κυβερνήσεως.
Πάτρα, 29-09-2017
Ο Αντιπεριφερειάρχης